продам квартира
Львівська область , місто Львів
| Код: |
888141161
|
| Поверх: |
10 із 16
|
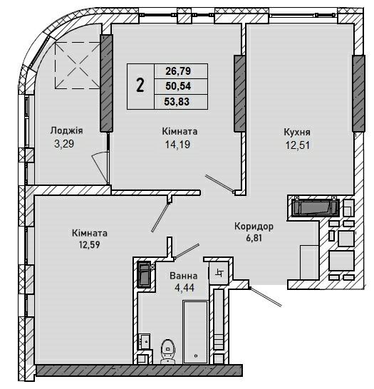
| Площа: |
54 м2
|
| Кухня: |
12 м2
|
| Ванні кімнати: |
2
|
| оновлено: |
19 листопада
|
Галицький; Власник!!!2км.кв.,54м2,вул.Миколайчука(переуступка); Продається 2х кім.квартира по переуступці за адресою Миколайчука 38,забудовник Галжитлобуд,клас житла комфорт, запланована здача кінець 2026року,квартира знаходиться на 10 поверсі в 16 поверховому будинку, дуже розвинена інфраструктура все необхідне поблизу школи,дитячі садочки,зупинки громадського транспорту, лікарня,базар,Замарстинівський парк,неподалік ТЦ Спартак,вікна будуть виходити на південно-західну сторону,у будинку буде два ліфти,опалення своя дахова котельня ,на даному етапі ведуться будівельні роботи,Торг присутній в межах розумного,Агентів нерухомості прошу дзвонити лише коли маєте потенційного покупця а так прошу не турбувати!!!