продам квартира
Львівська область , місто Львів
| Код: |
833917805
|
| Поверх: |
3 із 6
|
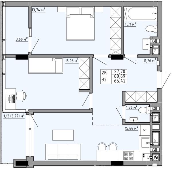
| Площа: |
67.15 м2
|
| Кухня: |
15.66 м2
|
| Ванні кімнати: |
3
|
| оновлено: |
15 листопада
|
Галицький; 2 кім квартира на Пилипа Орлика Family Hause без комісії власник; Продаж квартири (житло ) Жк Family house вул Орлика (Шевченківський район) Щурата ,Миколайчука ,Топольна Площа 67.15 метри Поверх 3/6 Не кутова Секція 3 Здача на 2 кВ 2025 року Будівництво цегляне Переуступка Телефонуйте ,можна оглянути локацію
забудовник - Галжитлобуд
житловий комплекс невисокої поверховості
індивідуальне опалення,буде встановлений котел,батереї,стяжка ,штукатурка
квартира з двома ізольованими кімнатами, кухнею , балконом та лоджією
поверх - 3/6
квартира не кутова
Комплекс розташований в хорошому районі, стрімко розвивається,поруч є школи та садки
гарний варіант під проживання чи інвестицію.