довгострокова оренда нежитлова нерухомість

місто Київ , вул. Протасів Яр
Показати на карті
4'200 USD
12 за м2
оновлено: 18 травня
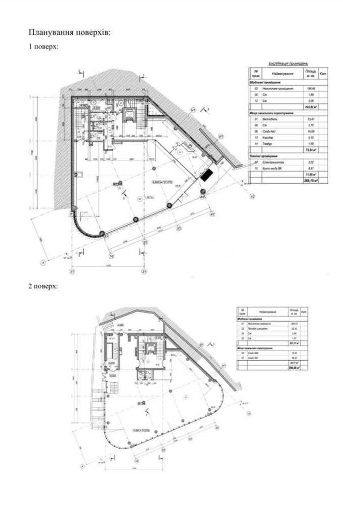
Вул. Протасів Яр 10. Метро Олімпійська - 12 хвилин пішки. Солом’янський район. Поруч з ЖК Альпійське містечко. Фасадна 6-поверхова безпечна монолітно-каркасна будівля зі сховищем, автономною газовою котельнею та великою терасою на даху під заклад. Респектабельна будівля 2024 року побудови, зі скляним фасадом, ідеально розташована в червоних лініях, на повороті до житлового комплексу Альпійське містечко, чудово оглядається з транспортної артерії міста, вулиці Протасів Яр, яка з’єднує центр міста та Солом’янку - може стати візитівкою Вашої компанії. Пропонується в оренду 1800 кв.м. (частина будівлі). Можлива оренда поповерхово, кожен поверх має площу 350кв.м. Висота стелі 3.5-4.5м. Сучасна торгово-офісна будівля має раціональні планувальні рішення: передбачено 3 входи, забезпечено автономність кожного з поверхів, які мають вільне планування open space, можливе дроблення на блоки по 170кв.м. Найбезпечніша в сучасних реаліях монолітно-каркасна технологія будівництва окремо розташованого об’єкта, передбачено сховище, оснащення сучасною інженерією: канальна система вентиляції та кондиціонування, власна котельня на газу, ліфт преміум-класу, алюмінієві віконні конструкції Guardian, склопакети наповнені аргоном. Міські мережі центрального водопостачання та каналізації. Власна фасадна парковка на 20 місць, є можливість безперешкодного паркування поруч, на узбіччі вулиці Протасів яр, до 70 автомобілів. Підходить для таких видів діяльності: торговельно-офісне представництво, коворкінг, медична клініка, лабораторія, заклад освіти, навчальний центр, кафе, ресторан з видовою терасою, творчий простір, високотехнологічне виробництво. Ціна від 12у.о./кв.м. Власник. • Тип житла: Вторинний ринок • Ремонт: Чорнова обробка • Рік побудови: 2024 • Висота стелі: 4.50 • Тип пропозиції: від власника • Меблі: з меблями