продам будинок

Київська область Києво-Святошинський район,  село Бузова
Показати на карті
59'900 USD
305 за м2
Код: 921573479
Кадастровий номер: 3222480801:01:006:0100
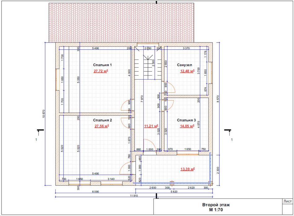
К-ть кімнат: 5
Поверх: 2
Площа: 196 м2
Земельна ділянка: 10 сот
оновлено: 20 травня
Будинок в с. Бузова, Бучанський район; Пропоную власний будинок, без посередників! Будинок має зручне планування з великою кухнею-вітальнею, трьома спальними кімнатами на другому поверсі та одною на першому, два санвузла та котельнею. У будинку вже виконано: частково чистове оздоблення стін та підлоги, розведена система теплої підлоги, розведення всіх електро комунікацій. Є скважина, каналізація (септик з переливом). В будинку є електроенергія 3фази, 18кВт. Можна сміливо заходити з ремонтом! Будинок споруджений на ділянці розміром 10 соток. Будинок знаходиться в тихому районі села Бузова, довкола приватна забудова, чисте повітря. Під'їзд до будинку асфальтований Зупинка громадського транспорту від будинку 150-200 метрів. Автомобілем їхати до Академмістечка 20 хвилин. У пішій доступності продуктовий магазин, за п'ять хвилин - озеро з обладнаним пляжем. Звертатися в особисті повідомлення чи телеграм: https://t.me/PraddoP_S