продам будинок

Київська область Вишгородський район,  село Старі Петрівці
Показати на карті
82'000 USD
1031 за м2
Код: 921367038
Кадастровий номер: 3221887801:03:129:0140
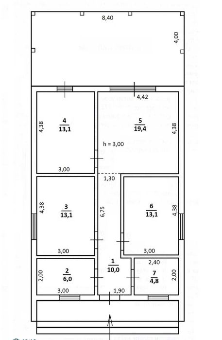
К-ть кімнат: 3
Поверх: 1
Площа: 79.5 м2
Земельна ділянка: 12 сот
оновлено: 01:36
Будинок поряд з лісом!; Продаж якісного будинку в мальовничому місці Локація: на межі с. Старі Петрівці та с. Нові Петрівці (масив Букаєвиця). Новий сучасний масив, активно забудовується. Поруч хвойний ліс (50 м) Зручна інфраструктура: поруч центральна траса, зупинка транспорту, АТБ, Сільпо, заправка Будинок будувався для себе, без економії на матеріалах Характеристики: 
-керамічний блок 2НФ М150 -
товщина несучих стін 380 мм
перегородки 120 мм -монолітне перекриття
 -фундамент бетон М350 -
переливний септик
 -електрика 10 кВт
 -якісні енергозберігаючі вікна Glasso Salamander
 Ділянка та додатково: 
-під’їзд ґрунтовий, до асфальту 500 м -
необхідно буріння свердловини
 -гараж 32 м² (газоблок 300 мм, армопояс)
 Ідеальний варіант як для дачі, так і для постійного проживання