продам будинок

Полтавська область Полтавський район,  село Снопове
Показати на карті
59'000 USD
173 за м2
Код: 921374583
К-ть кімнат: 1
Поверх: 2
Площа: 340 м2
Земельна ділянка: 20 сот
оновлено: 20:24
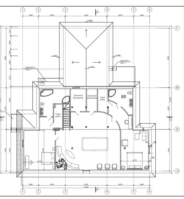
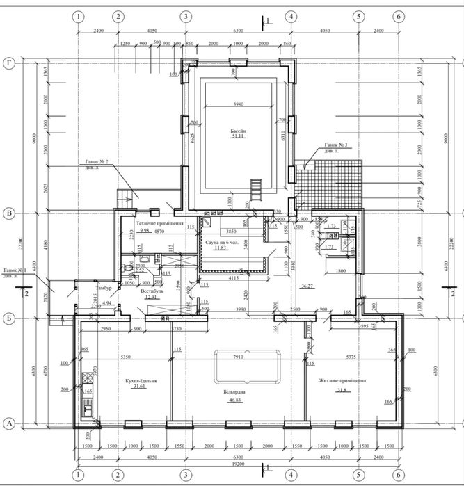
Продаж будинку у передмісті Полтави; Продається двоповерховий капітальний будинок у тихому передмісті Полтави (с.Снопове, до центра Полтави 20 хв на авто) без промислових об’єктів поруч. Об’єкт спроектований як приватна будівля для родини або банно-відпочинковий комплекс із повною автономією. Будинок побудовано з міцних сучасних бетонних блоків. Перекриття між поверхами залізобетонні плити. Фасад повністю утеплений та оздоблений декоративною штукатуркою. Криша будинку також утеплена та має мансардні вікна. В будівлю проведені вода, та газ. Встановлено газовий котел та зроблена система тепла підлога на першому поверсі. Велика площа та конфігурація даху дозволяють розмістити потужну та ефективну систему сонячних панелей. Встановлено якісні металопластикові вікна Рехау. В будівлі передбачені і виконані в початковому етапі приміщення під сауну та басейн. Будинок має кілька виходів на тераси та ганки, що дозволяє грамотно зонувати простір двору. На ділянці достатньо місця для ландшафтного дизайну, альтанок чи додаткового парковочного місця. Розмір ділянки близько 20 соток. Будинок готовий до внутрішнього оздоблення під ваші потреби — від приватного житла до комерційного SPA-проєкту. Локація: с. Снопове, Полтавський район. Тихе місце з чистим повітрям та швидким доступом до міста.