продам будинок

Дніпропетровська область ,  місто Кривий Ріг
Показати на карті
20'000 USD
316 за м2
Код: 921069365
К-ть кімнат: 3
Поверх: 1
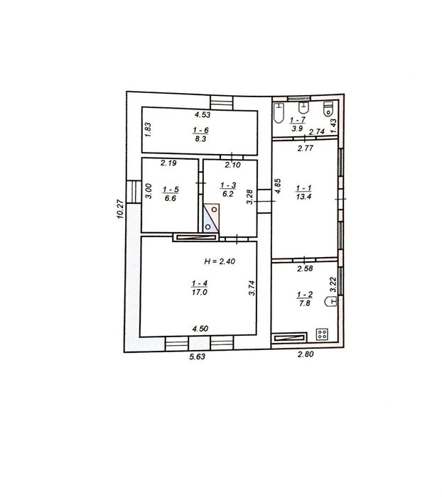
Площа: 63.2 м2
Земельна ділянка: 8 сот
оновлено: 22 квітня
Покровський; Продаж будинків від власника!!!; ПРОДАЖ БУДИНКУ ВІД ВЛАСНИКА!!!Будинок знаходиться р-н 44кв. ,вул.Університетська. Будинок з червоної цегли,м/п вікна,газовий котел , новий бойлер, ванна і туалет у будинку.Стан житловий,продається з меблями і побутовою технікою.Фасад частково утеплений,дах не протікає (капітальний ремонт у 2024 році).Є літня кухня,гараж зі смотровою ямою,технічні будівлі.Теріторія задбана.Є садок з фруктовими деревами і віноградником.Дзвоніть за телефоном 06******94 Тетяна.