продам квартира

Рівненська область ,  місто Рівне
Показати на карті
44'500 USD
1463 за м2
Код: 920573303
Поверх: 1 із 2
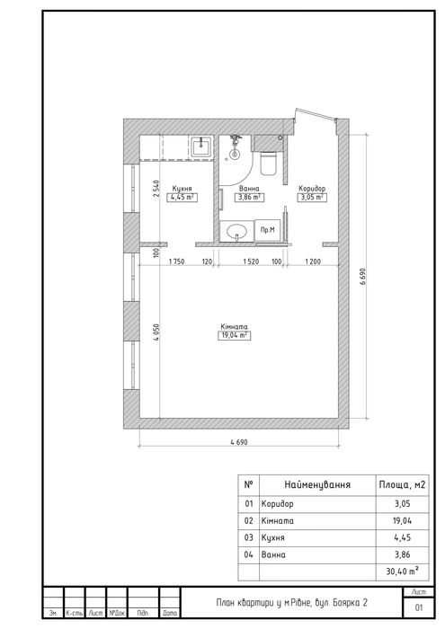
Площа: 30.4 м2
Кухня: 4.5 м2
оновлено: 4 травня
1-кімнатна квартира з автономним опаленням в районі Олени Теліги біля військового госпіталя. Власник.; Пропозиція від власника! Готова квартира з ремонтом + автономне опалення Продається затишна 1-кімнатна квартира в цегляному будинку по вул. Олени Теліги (район військового госпіталю). Поруч є вся необхідна інфраструктура : -дитячий садок -школа -громадський транспорт -епіцентр, метро , велмарт у пішій доступності Головні переваги: Автономне опалення (двоконтурний котел) У будинку НЕ вимикають світло Закритий двір + місце для паркування Додатково сарай Характеристики: Поверх: 1 з 2 Площа: 30,4 / 19 / 4,5 м² Лічильники: газ, вода, електроенергія Проведений інтернет Стан — Свіжий ремонт: -Металопластикові вікна (2-камерний енергозберігаючий склопакет) -Нове освітлення Санвузол повністю оновлений: Нова стяжка та плитка Новий каналізаційний стояк Душова кабіна Рушникосушка Підвісний унітаз Умивальник із тумбою Пральна машина Оздоблення: Ламінат у кімнаті та коридорі Шпалери під фарбування (стіни свіжі, світлі) Нові плінтуси та багети Стельовий карніз Двері-купе Кухня: Стіни пофарбовані миючою фарбою Встановлений двоконтурний котел На підлозі нова стяжка і плитка Квартира підготовлена для фінального облаштування — ви зможете зробити кухню, шафу та меблювання повністю під свій смак без зайвих переплат за чужий дизайн.