продам будинок

Івано-Франківська область Долинський район,  село Буковець
Показати на карті
75'000 USD
909 за м2
Код: 920379766
К-ть кімнат: 2
Поверх: 1
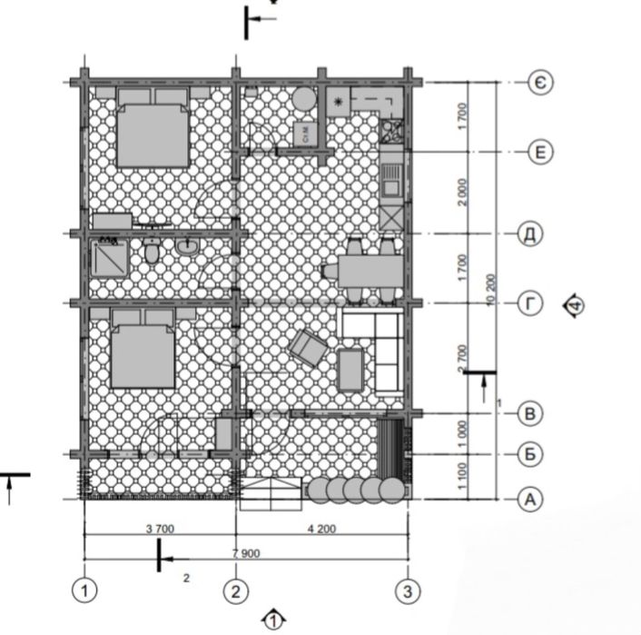
Площа: 82.5 м2
Земельна ділянка: 10 сот
оновлено: 21 квітня
Будинок з масиву оциліндрованого та профільованого брусу; Пропоную вашій увазі один з варіантів проекту будинку з оциліндрованого чи профільованого брусу за бажанням. На земельній ділянці яка знаходиться с. Буковець. Площа ділянки 10сот. З усіма комунікаціями. Підʼїзд на ділянку, електрика 10квт. септик, вода. Будинок під ключ. Проект можна змінювати на початковій стадії будівництва. За більш детальнішою інформацією телефонуйте.