продам квартира
| Код: |
920440514
|
| Поверх: |
18 із 25
|
| Площа: |
55 м2
|
| Кухня: |
14.3 м2
|
| Ванні кімнати: |
1
|
| оновлено: |
08:05
|
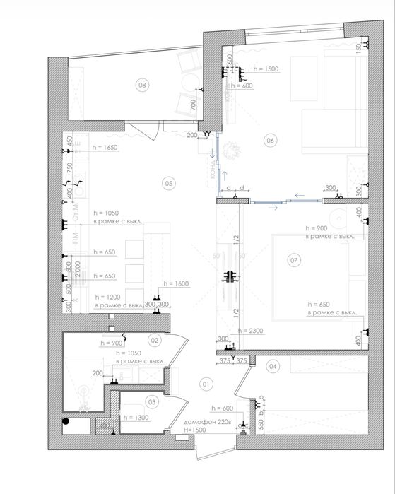
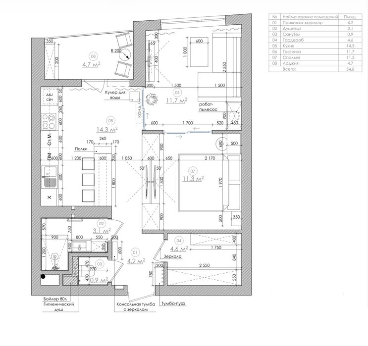
Дніпровський; Продаж | ЖК АВТОГРАФ | квартира з дизайнерським ремонтом | Київ; 1. Планування і площа
Квартира з продуманим плануванням: кухня‑вітальня, спальня, кабінет/друга кімната, засклений балкон/лоджія, санвузол та коридор з місцями зберігання. Високий поверх, з вікон відкривається вид на парк, будинків навпроти немає.
2. Ремонт і меблі
Виконано сучасний ремонт у спокійних тонах: якісний кварцвініл «ялинкою», декоративні стінові панелі в спальні, натяжні/гіпсокартонні стелі з інтегрованими трековими світильниками. Квартира продається з кухонним гарнітуром, вбудованою технікою, м’якими меблями.
3. Кухня і техніка
Стильна кухня з фасадами без ручок, кварцовим стільником і фартухом, вбудованими духовою шафою та мікрохвильовкою, вбудована посудомийна, пральна машини та інша техніка. Продумане зберігання, багато шаф до стелі, зручна робоча поверхня та підсвічування.
4. Балкон і вид
Засклений балкон із сірим керамогранітом на підлозі, приховано розміщені зовнішні блоки кондиціонерів( теплових насосів), тому ніщо не займає місце в кімнатах. З балкона – панорамний вид на парк, зелену зону й міську панораму.
5. Будинок та інфраструктура
Сучасний ЖК з доглянутою територією, охайним під’їздом і швидкісними ліфтами. Поруч парк для прогулянок і спорту, супермаркети, кафе, школи, дитсадки, зручна транспортна розв’язка (метро/трамвай/маршрутки – впиши свій варіант).
6. Умови продажу
Квартира готова до угоди, документи в порядку. Реальним покупцям – аргументований торг після перегляду. Посередникам прохання не турбувати.