продам будинок

Одеська область Овідіопольський район,  село Балка
Показати на карті
100'000 USD
200 за м2
Код: 891531384
К-ть кімнат: 5
Поверх: 2
Площа: 500 м2
Земельна ділянка: 10 сот
оновлено: 30 квітня
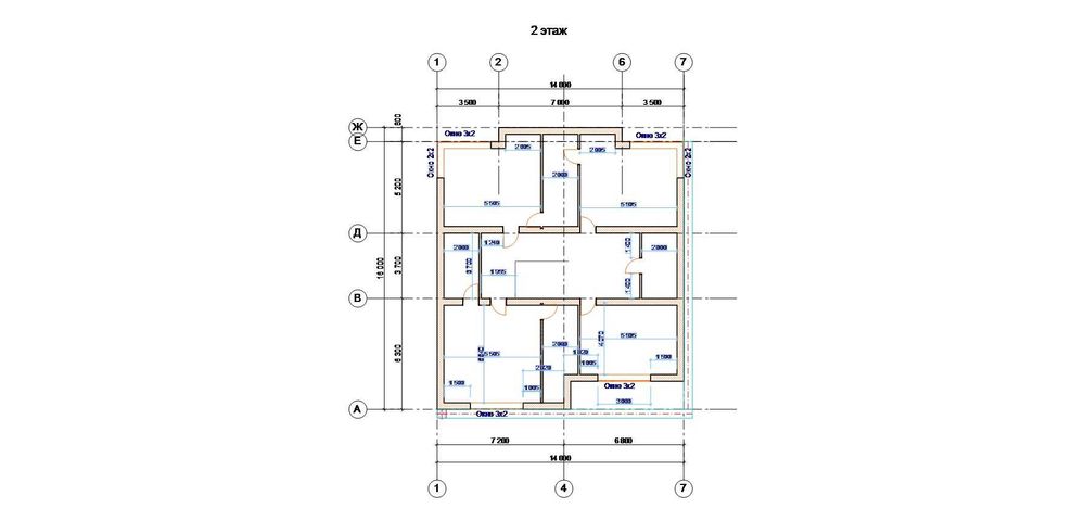
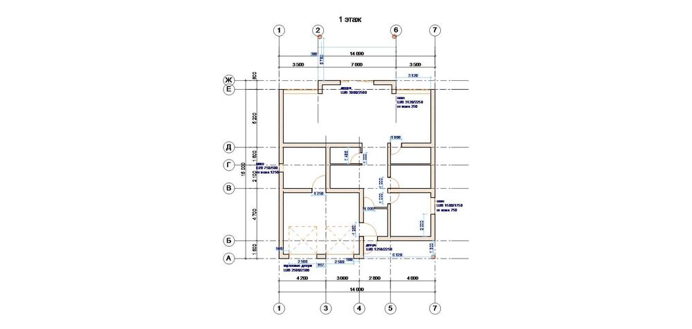
Идеальный объект для достройки, участок с домом, Сухой Лиман, Одесса; Участок 10 соток с готовой коробкой 14м*16м, прекрасное место для воплощения вашей мечты! Стены из керамических блоков Porotherm. Утеплённая плоская крыша. Отличная возможность спроектировать внутреннюю планировку и отделку по вашему вкусу и потребностям. Экономия времени на начальном этапе строительства – фундамент и основные конструкции уже готовы. Общая площадь дома – 500кв.м 2 этажа + подвальное помещение. Наличие проекта дома. На участке имеются следующие коммуникации: электричество (подведено), вода (центральный водопровод), газ. Центральная улица «Надежды» на Сухом Лимане. Удобный подъезд, асфальтированная дорога.