продам будинок

Львівська область Пустомитівський район,  село Зубра
Показати на карті
1'100 USD
6 за м2
Код: 916705836
Кадастровий номер: 4623683300:01:003:2366
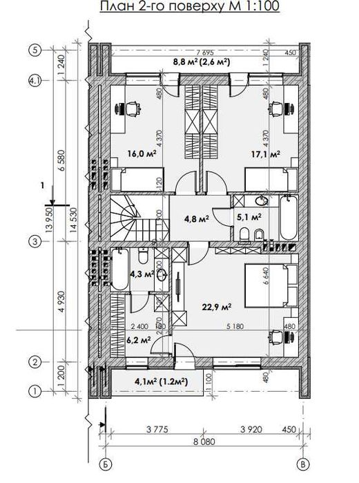
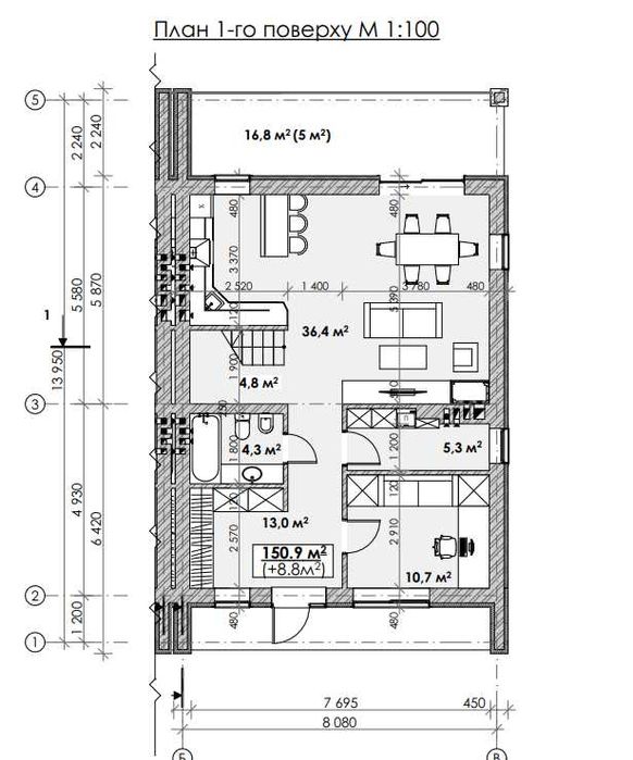
К-ть кімнат: 5
Поверх: 2
Площа: 159.7 м2
Земельна ділянка: 0.03 сот
оновлено: 13 квітня
Котедж 159 м² біля Львова | Зубра | $1100/м² | здача до нового року; Продається просторий котедж Nord Yard у затишному передмісті Львова — с. Зубра. Хороший варіант для тих, хто хоче жити поруч з містом, але в тихому та комфортному районі. Основні характеристики: Загальна площа — 159.7м2 Продумане дизайнерське планування Сучасна архітектура та якісні матеріали будівництва Спокійна та зручна локація біля Львова Хороший доїзд до міста Здача котеджу планується до Нового року. Вартість — 1100 $ за м². до межі Львова — приблизно 1–2 км до району Сихів — приблизно 3 км Котеджів небагато, тому телефонуйте, щоб домовитись про перегляд