продам квартира

Дніпропетровська область ,  місто Кам'янське (Дніпродзержинськ)
Показати на карті
16'000 USD
375 за м2
Код: 919659375
Поверх: 1 із 3
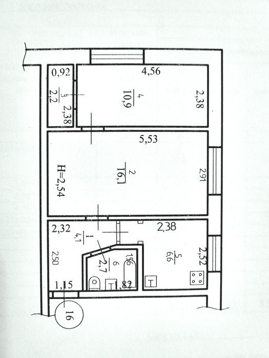
Площа: 42.6 м2
Кухня: 6.6 м2
Ванні кімнати: 2
оновлено: 23 квітня
Продаж 2-кімнатної квартири (Дніпробуд); Продається 2-кімнатна квартира 42,6 кв.м. від власника, затишний район Дніпробуду (вул. Енергетиків). Готова під косметичний ремонт. Двокамерні склопакети 2023 року, чавунні батареї на 11 і 16 секцій в кімнатах (взимку тепло), газова робоча колонка під гарячу воду. Кімнати потребують косметичного ремонту, підлога паркетна під косметичне оновлення. В спальні є вмісткий льох для зберігання консервації і овочів, в т.ч. є комора в спальні. Товщина зовнішніх стін 50+ см. В квартирі є деякі меблі радянських часів. Звертайтеся за подробицями за вказаним номером тел. з 17.00 до 20.00 в будні, та з 9.00 до 20.00 у вихідні. Володимир.