продам будинок

Київська область Бориспільський район,  село Вишеньки
Показати на карті
106'000 USD
1413 за м2
Код: 917904063
Кадастровий номер: 3220881301:01:022:0249
К-ть кімнат: 3
Поверх: 1
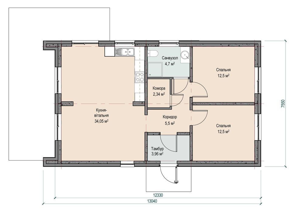
Площа: 75 м2
Земельна ділянка: 7.12 сот
оновлено: 23 березня
Сучасний будинок 75 м² + 7 соток, біля річки та лісу. С. Вишеньки.; Продається стильний одноповерховий будинок площею 75 м² у с. Вишеньки, Бориспільський район — ідеальне місце для життя або інвестиції. Локація: • поруч ліс — свіже повітря та прогулянки щодня • річка в пішій доступності — відпочинок, риболовля, релакс • зручний виїзд до Києва (20–25 хв) Планування (максимум комфорту на компактній площі): • велика кухня-вітальня 34 м² з виходом на терасу • 2 окремі спальні по 12,5 м² • санвузол • гардероб / комора • просторий коридор + тамбур Переваги будинку: • сучасний мінімалістичний дизайн • панорамні вікна — багато світла • власна ділянка • тераса для відпочинку • можливість зробити навіс/гараж Ідеально підійде: • для сім’ї, яка хоче жити поруч з природою • як заміський будинок для відпочинку • як інвестиція під оренду (дуже популярний напрямок) Телефонуйте для детальної інформації та перегляду.