продам будинок

Київська область Васильківський район,  село Іванковичі
Показати на карті
130'000 USD
945 за м2
Код: 918027137
К-ть кімнат: 3
Поверх: 2
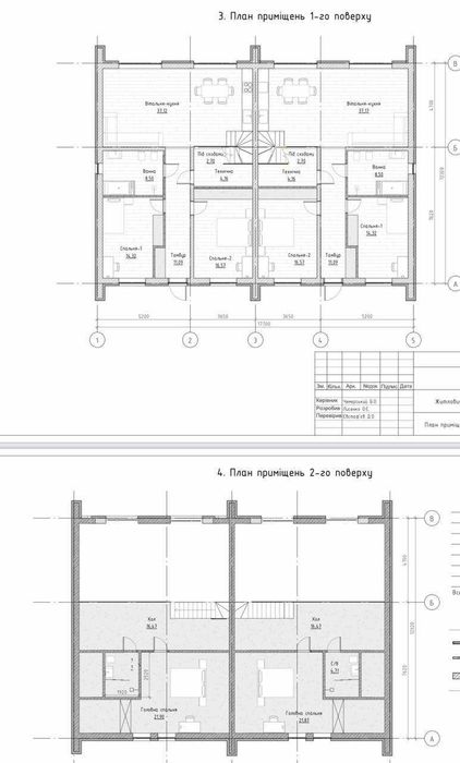
Площа: 137.5 м2
Земельна ділянка: 3 сот
оновлено: 13 квітня
Продаж готових дуплексів, с. Іванковичі; с.Іванковичі Будинок серед тиші та лісу Продаються будинки з власним виходом до лісу — місце, де ранок починається з тиші, а не з міського шуму. Площа будинку: 137,5 м² Максимальна незалежність: • власна свердловина • власний септик • електрика 10 кВт з можливістю збільшення власна парковка на 2 авто Закрита територія котеджного містечка “TYSHA” — безпека, спокій і затишок щодня. Це містечко для тих, хто цінує тишу, простір і комфорт Будинків з видом на ліс залишилось лише два. Запрошуємо вас на перегляд — можливо, це саме ваш дім