продам будинок
Одеська область , місто Одеса
| Код: |
917880967
|
| Кадастровий номер: |
5123755800:01:003:5881
|
| К-ть кімнат: |
3
|
| Поверх: |
1
|
| Площа: |
105 м2
|
| Земельна ділянка: |
2.18 сот
|
| оновлено: |
24 травня
|
Київський; Живіть сучасно та безпечно! Новий стильний таунхаус у Таїрове (Масив 21) з власним двором; Продається новий одноповерховий будинок (тип — зблокований), побудований за сучасним архітектурним проектом. Ідеальне рішення для тих, хто хоче змінити міську квартиру на власний затишний простір у передмісті Одеси.
Головні переваги:
Будинок орієнтований:
на північний схід (дуже комфортний варіант) не перегрівається і є м’яке ранкове сонце
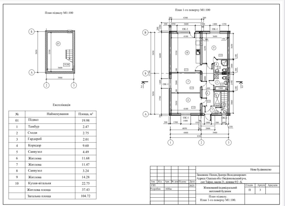
• Продумане планування: Лише один поверх — ніяких зайвих сходів, кухня-вітальня 23кв.м, три оскремі кімнати(12, 12 та 14 кв.м), що максимально зручно для сімей з дітьми та цінителів ергономіки.
• Надійне укриття: Будинок має повноцінний підвальний поверх 20кв.м, який у сьогоднішніх реаліях забезпечує не лише додаткове місце для зберігання, а й максимальну безпеку.
•місце паркування для 2 автомобілів
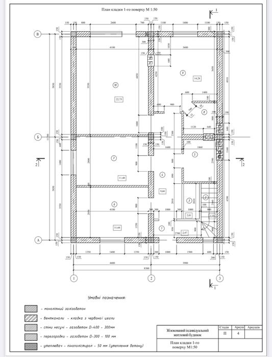
• Якісні матеріали: Покрівля виконана з преміальної металочерепиці кольору RAL 7005 (графіт), що надає будинку стильного та сучасного вигляду. Встановлено надійну водостічну систему.
Тихе місце з розвиненою інфраструктурою поруч.
Технічні характеристики:
• Стан: Нове будівництво.
• Поверховість: 1 поверх + підвал.
• Дах: 238 м² (металочерепиця 0.5 мм).
• Комунікації: Все передбачено згідно з проектом.
Документи: Повне оформлення права власності на покупця.
Кадастровий номер:
5123755800:01:003:5881
Місцезнаходження
46.360580,30.691523
•Локація:
Одеська обл., Одеський р-н, Таїровька ТГ, смт Таїрове, Масив 21, №9/2-Б, вугол вул. Якірної
Цей будинок — капітальна інвестиція у ваше майбутнє.
Телефонуйте, щоб домовитись про перегляд та побачити все на власні очі!
+38********23
Інна