продам квартира
| Код: |
917813655
|
| Поверх: |
3 із 9
|
| Площа: |
66.2 м2
|
| Кухня: |
9 м2
|
| Ванні кімнати: |
1
|
| оновлено: |
19 березня
|
Шевченківський; БЕЗ% Шикарна 3к квартира біля метро Берестейська Берестейський пр-т; Адреса: Артилерійський провулок, 5А
Поверх: 3/9
Будинок: цегляний, теплий, товщина стін 60 см
+Опис квартири
Пропонується простора 3-кімнатна квартира з новим якісним дизайнерським ремонтом, виконаним для власного проживання. Продаж у зв’язку з переїздом.
Квартира тепла, суха, без сторонніх запахів, повністю готова до комфортного проживання. Фасад квартири та лоджії утеплені. Тиха локація — з під’їзду прямий вихід у парк. Опалення працює навіть при відключеннях електроенергії.
+Планування та площі
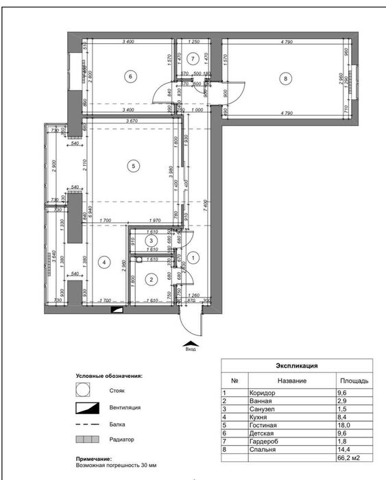
Загальна площа — 66,2 кв.м
Житлова — 45 кв.м
Кухня — 9 кв.м
Простора вітальня та дві окремі кімнати
Санвузол роздільний
Гардеробна кімната
+Технічне оснащення
Підігрів підлоги по всій квартирі
Відеоспостереження в квартирі, на поверсі та під будинком
Відеодомофон
Сучасний ліфт
Якісні броньовані двері
Якісні міжкімнатні двері
Лічильники на газ, воду та електроенергію
Автономна газова колонка
Нова електропроводка та сантехнічні та опалювальні комунікації
+Оздоблення та інтер’єр
Натуральна паркетна дошка
Керамограніт
Якісні ролети
Туалетний столик з підсвіткою
Сейф
+Меблі та побутова техніка
Квартира повністю мебльована якіними сучасними меблями:
вбудована кухня, шафи, комоди, полички, велике двоспальне ліжко, двоярусне дитяче ліжко, повністю облаштована дитяча кімната, меблі в санвузлах, ортопедичний диван, вишукані крісла та стільці.
+Побутова техніка (нова, якісна):
2 кондиціонери
пральна машина
посудомийна машина
духова піч
мікрохвильова піч
газова варильна поверхня
холодильник — за домовленістю
+Інфраструктура та локація
Метро Берестейська — 3 хвилини пішки
Будинок розташований у зеленій зоні
Поруч парк, озера, бювет
Магазини, аптеки, банки, пошта
Дитячий садок
Музична школа (у цьому ж будинку)
Бібліотека
Зручна транспортна розв’язка, швидкий доступ до центру міста
+Умови продажу
Без комісії!!! Від власника
Квартира підпадає під державні програми: єСертифікат, єВідновлення, постанова №280
Можливий безготівковий розрахунок за додаткову комісію
Розглядається оплата в криптовалюті як один із варіантів
Відеоогляд — за запитом
Запрошуємо на перегляд