продам будинок

Київська область Києво-Святошинський район,  село Білогородка
Показати на карті
121'000 USD
1344 за м2
Код: 916865418
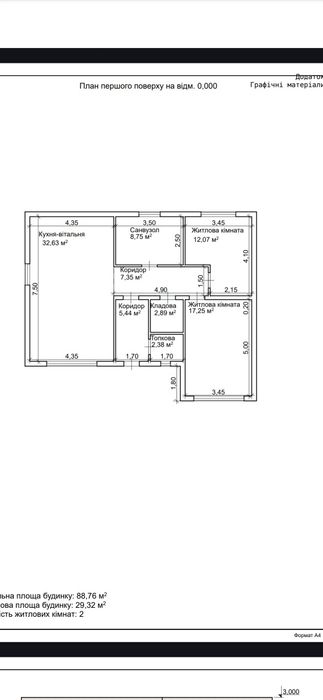
К-ть кімнат: 2
Поверх: 1
Площа: 90 м2
Земельна ділянка: 4.5 сот
оновлено: 17 березня
Продаж будинку 90м кв; Продається сучасний будинок на ділянці 4.5 сотки під ремонт у дуже гарній заселеній місцевості серед соснового лісу. За адресою :село Білогородка вул Жовтнева. Привітні та спокійні сусіди. БУДИНОК змуровано з ленточного фундаменту+ монолітна плита, газоблок 250мм,дах вальмовий. Є вихід на чердак,встановлені вікна Рехау 70мм з ламінацією. Підведенно комунікації: Світло 16кв( день -ніч) ,газопостачання, власна скважина та каналізація. Будинок введений в експлуатацію.