продам квартира
Одеська область , місто Одеса
| Код: |
917218777
|
| Поверх: |
5 із 6
|
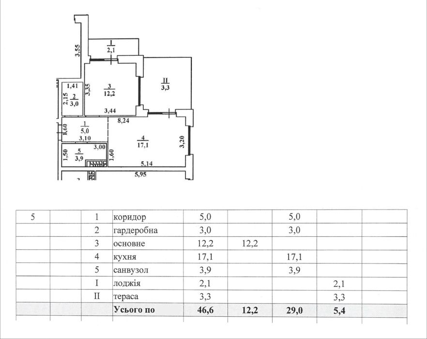
| Площа: |
46.6 м2
|
| Кухня: |
17 м2
|
| оновлено: |
25 травня
|
Київський; Без комиссии. Дом сдан. Квартира с большой террасой + балкон. ЖК Пространство на Дачной.; Квартира с большой 10м2 террасой +балкон. Собственник. Дом сдан. Секция А.
5 этаж (дом 6 этажей). Общая площадь 46,6 м2.
Закрытая территория, паркинг,
море в пешей доступности.
Доп информация, видеообзор по запросу.
Без комиссии. Переуступка