продам квартира

Дніпропетровська область ,  місто Нікополь
Показати на карті
10'500 USD
215 за м2
Код: 913437300
Поверх: 5 із 5
Площа: 48.8 м2
Кухня: 7.6 м2
Ванні кімнати: 2
оновлено: 25 травня
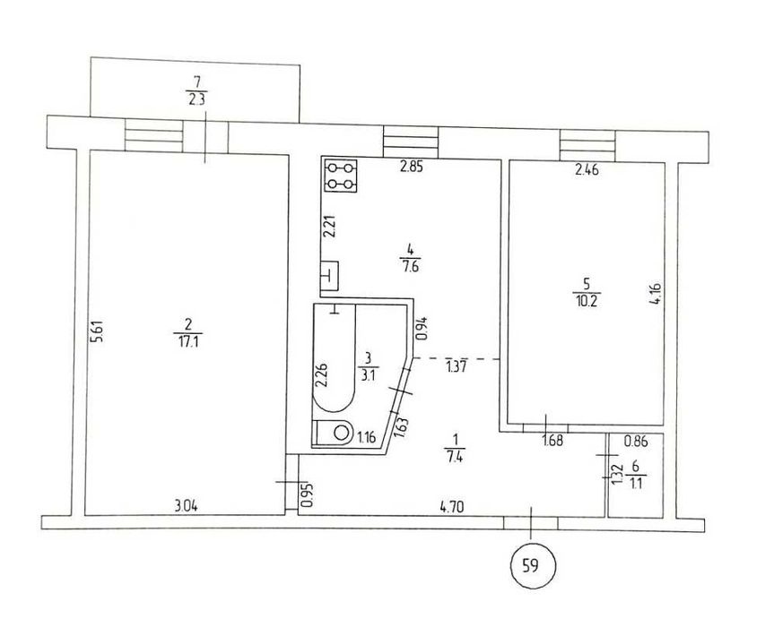
2-кімнатна квартира, р-н вул. Княжа; Двокімнатна квартира в районі вулиці Княжа, поряд з гаражним кооперативом «Воїнський». Загальна площа квартири 48,8 кв.м., з яких (дивіться схему на фото): коридор 1= 7,4 кв.м., житлова кімната 2= 17,1 кв.м., санвузол 3= 3,1 кв.м., кухня 4= 7,6 кв.м., житлова кімната 5= 10,2 кв.м., шафа 6= 1,1 кв.м., балкон 7= 2,3 кв.м. Технічний паспорт на квартиру виданий у липні 2025 року. Зареєстрованих осіб немає. Опалення електричне, але квартира дуже тепла сама по собі. Без ввімкненого опалення у найлютіші морози температура у квартирі на рівні +15 … +16 градусів. Вікна металопластикові у всіх кімнатах. Комунікації нові: пластикова каналізація, металопластикові труби під воду. Нагрівання води - газова колонка. Також в наявності кондиціонер, пральна машина, мікрохвильова піч, холодильник. Ремонт, який видно на фото, виконано у 2022 році. Підлога – лінолеум. Лічильники газу і світла. На воду лічильник відсутній. Можливий продаж квартири разом із гаражем у ГК «Воїнський», вартість гаражу при цьому буде обговорюватися окремо, після огляду. Всі документи готові до продажу. Можливий адекватний торг. Продаж не терміновий. На всі додаткові питання готовий відповісти за телефоном, бажано писати у Viber, WhatsApp, Telegram.