продам квартира
Львівська область , місто Львів
| Код: |
916067612
|
| Поверх: |
12 із 16
|
| Площа: |
77.4 м2
|
| Кухня: |
31.85 м2
|
| оновлено: |
15 березня
|
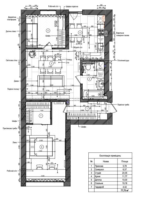
Галицький; Продаж 2-кім квартири ЖК Національний +дизайн проект в подарунок; Продається 2-кімнатна квартира (перепланована) у ЖК Національний, вулиця Стрийська 108, Франківський р-н.
Характеристики:
- Клас: бізнес.
- Загальна площа 77,4м2; кухня-студія 31,85м2;
- Технологія будівництва: монолітно-каркасна
- Стіни: керамоблок
- Утеплення: мінеральна вата
- Розташування квартири: на 12-му поверсі 16- поверхового будинку (ліфт, який опускаються в підземний паркінг)
- Стан квартири: без ремонту (зроблено перепланування, сантехніку, тепла підлога+ куплена якісна сантехніка та радіатори на загальну суму 10000$);
- Індивідуальне газове опалення;
Інфраструктура:
Поруч ЖК є школи, садочки, поліклініка, спортивний комплекс, зупинка транспорту, ресторан та Duck’s lake.
На відстані 1 км розташовані три парки: Стрийський, «Горіховий гай» і «Бондарівка», які підійдуть для сімейних прогулянок, пікніків, вигулу собак і пробіжок. Якщо любите рибалити — в 2 хвилинах пішки є невелике озеро.
Умови продажу: будинок зданий, є право власності.