продам земля

Рівненська область ,  місто Рівне
Показати на карті
480'000 USD
480000 за м2
Код: 915958780
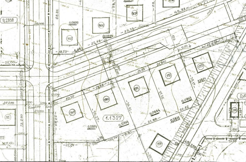
Земельна ділянка: 32.56 сот
Цільове призначення: інше
оновлено: 00:19
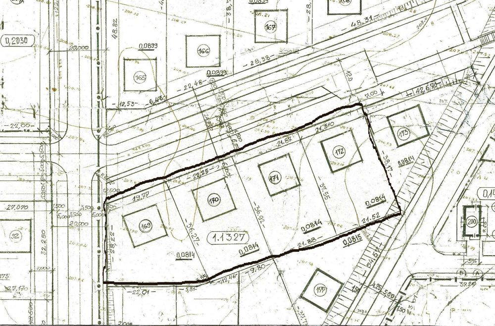
Продаж 32.56 соток в зоні Ж4 під багатоповерхівку (навпроти Екватора); Продаж чотирьох (по ~8 сотих кожна) суміжних ділянок загальною площею 32.56 соток в сучасному районі навпроти Екватора які знаходяться в зоні Ж4, в якій і можна будувати багатоквартирні будинки (Для орієнтира 5610100000:01:020:0544 кадастровий номер однієї четвертої кутової ділянки з ціх суміжних чотирьох) Для трьох (з ціх чотирьох) суміжних ділянок: - цільове призначення земельних ділянок переведено в 02.03 згідно з Класифікатором — «Для будівництва і обслуговування багатоквартирного житлового будинку» - отримані містобудівні умови під п'ятиповерхівку (спроектована чотирьохповерхівка на 49 квартир + 113 кв.м. комерції) - отримані техумови по газу на 49 квартир з підключенням біля ділянки, без необхідності встановлення ГРП - отримані техумови по воді на 49 квартир - отримані техумови на 150 кіловат по 50 кіловат на кожну ділянку - на ціх трьох ділянках розташовані і зареестровані об'екти незавершеного будівництва - на кожній ділянці фундамент під житловий будинок, право власності на них теж передаеться покупцю --- На фото в двох місцях забори стоять НЕ по межах ціх ділянок - На фасадній стороні - паркан майже не охоплює кутову четверту ділянку (бо не планували її одразу забудовувати) - На стороні що межує з двором сусіднього будинку - для зручності для збільшення двору - який всеодно буде спільним між будинком що вже е (ми його будували) і будинком що побудується - ми перенесли паркан До продажу всі паркани за потреби перенесуться по межах ділянок Справжні межі окреслені ЧОРНИМИ лініями на фото Також е багато вільної прилеглої території між ділянками і дорогами що поруч, яка використається під парковки +\- ділянки + ця територія це сумарно десь 45 соток --- Е два варіанти: №1. Побудувати на трьох ділянках, четверту ділянку 5610100000:01:020:0544 залишити під парковки №2. Побудувати на трьох ділянках, здати будинок, а потім і четверту ділянку забудувати При будівництві чотирьохповерхівки (можна перепланувати на пятиповерхівку) на ТРЬОХ ділянках, по варіанту №1 буде ПРИБЛИЗНО: Загальна площа будівлі ( м² ) 3072,95 Загальна площа будівлі (корисна площа) ( м² ) 2 498,14 49 квартир (1 кім.-21шт, 2 кім.-18шт, 3 кім.-10шт.) Площа приміщень комерційного використання ( м² ) 113,37 При будівництві на чотирьох ділянках треба умовно додати +33% відсотки площ до проекту що описаний вище, якій розрахований для трьох ділянок. Надані фотографії це візуалізація проекту будинку на ТРЬОХ ділянках --- Особливість ціх всіх ділянок: - Елітний забудований район, одні з останніх ділянок у тому місці - З 3-4-5 поверхів гарний вид на масив з приватними будинками (нічого не стоїть велике перед вікнами затуляючи вигляд) + на захід сонця - Елітне місце на районі - навколо дорогі будинки, рівні дороги - На підвищенні а не в низині знаходяться - Тихе місце, не біля доріг, в квартирах буде тихо - Приватний двір - Просторо навкруги - Близько школа, садок, зупинки, т.ц. Екватор - Квартири в цьому місці добре розкуповуються, точно продадуться - На кутовій ділянці перший поверх зробити комерцію (над дорогою) --- Продаються чотири ділянки одразу Можливий продаж окремо трьох ділянок (без четвертої кутової) - ціна буде ~70% від ціни що за чотири ділянки Четверта кутова ділянка окремо не продається Ціна договірна - Прохання на телефон не дзвонити (незнайомі номера блокуються автоматично). Дзвонити чи писати чи надсилати голосові в месенджери (Вайбер, Телеграм, Ватсапп) чи в чат на Olx - Готові співпрацювати з ріелторами також - отримуєте любу адекватну комісію з вашого клієнта за ваші послуги. (+ прохання не задавати питання відповіді на які є по тексту оголошення) - Якщо оголошення опубліковане продаж 1000% актуальний (не перепитуйте про це)