продам будинок

Київська область Києво-Святошинський район,  село Крюківщина
Показати на карті
82'000 USD
1000 за м2
Код: 912183498
Кадастровий номер: 3222484001:01:019:0282
К-ть кімнат: 3
Поверх: 1
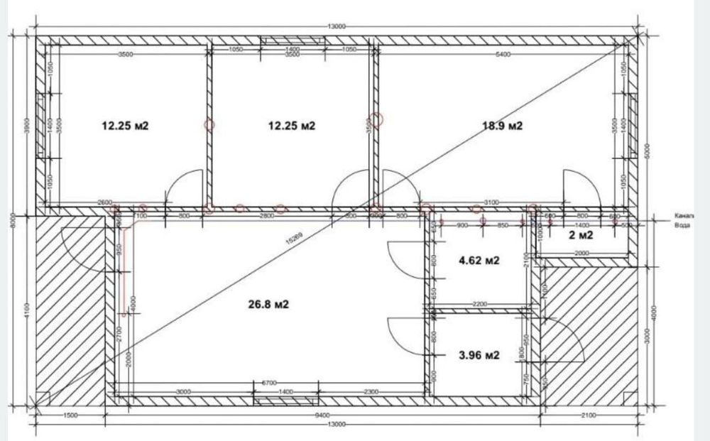
Площа: 82 м2
Земельна ділянка: 4 сот
оновлено: 16 квітня
Приватний будинок 82м2; Пропонується до продажу новий одноповерховий будинок площею 82 м2, розташований у затишному та перспективному районі Крюківщина, вул. Мальовнича, 12. Якщо ви розглядаєте купівлю через програму Єоселя, то для сім'ї з 2х дорослих та 1 дитини дозволяється купити будинок до 83,5 м² + 10% тобто до 92м². Наразі сам будинок не введений в експлуатацію, цей процес займає близько 1 місяця та вимагає додаткових витрат. Якщо ви впевнені, що вам погодять цю програму, то можемо домовитись за його введення і тоді подаватись на неї. Основні характеристики: Площа будинку: 85 м2 Площа ділянки: 4 сот Матеріал стін: газоблок Утеплення фасаду: пінопласт Дах: металочерепиця Утеплення горища: мінеральна вата Встановлена драбина на горище Комунікації: Електрика заведена в будинок Скважина Септик Газ — поруч на сусідній вулиці (за потреби можливе підключення) Стан: Будинок новий, готовий до внутрішнього оздоблення. Рівні стіни, розведена електрика Встановлені вікна та вхідні двері, 4 теплові насоси (кондиціонери). Локація: Тиха вулиця, сучасна забудова Зручний виїзд до Києва Поруч магазини, інфраструктура, громадський транспорт Будинок ідеально підійде для сім’ї або як інвестиція. Телефонуйте для швидкого перегляду та додаткової інформації. Пишіть в телеграм delfinmaxim - скину більше фото, відео, точну локацію та витяг по землі.