продам квартира

місто Київ
79'500 USD
852 за м2
1 / 3
Код: 908443937
Поверх: 5 із 25
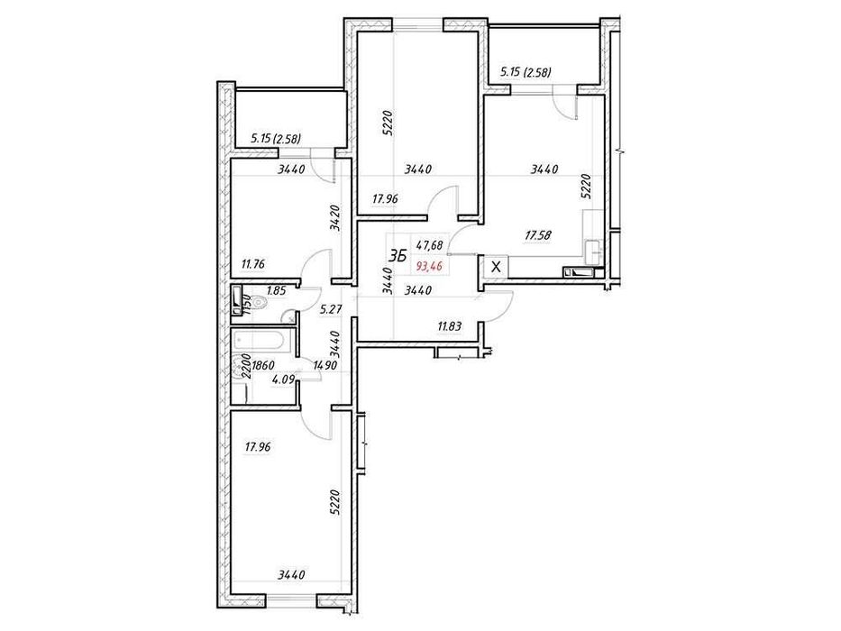
Площа: 93.3 м2
Кухня: 17.5 м2
Ванні кімнати: 3
оновлено: 24 травня
Деснянський; Продаж 3х кімнатної квартири вул. Електротехнічна 43; ЖК " Деснянський". Квартира в будинку першої черги. Зареєстровано право власності. Розвинена інфраструктура. Можливий продаж за програмою ЄОСЕЛЯ.