продам квартира

Київська область Бориспільський район,  село Рогозів
Показати на карті
14'500 USD
391 за м2
Код: 642136224
Поверх: 2 із 4
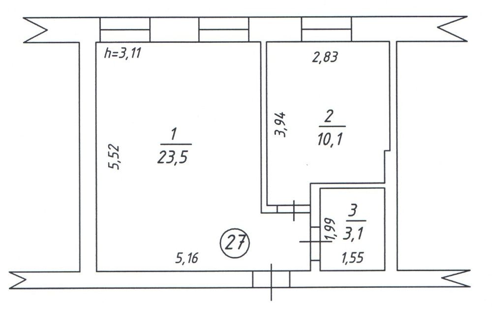
Площа: 37 м2
Кухня: 10 м2
Ванні кімнати: 2
оновлено: 27 лютого
Без % Власник. Продам однокімнатну квартиру.; Продам однокімнатну квартиру в центрі. с.Рогозів, Бориспільського р-ну. Загальна площа 36.7 м ². Житлова 23.5м ². Кухня 10.1м ². Туалет/ванна 3.1м². Висота стелі 3.11м. Стіни цегляні, покриті стартовим шаром штукатурки. У квартирі розведена проводка, а також змонтовані труби і радіатори автономної системи опалення. Також розведена і підключена система водопостачання та каналізації, є індивідуальний лічильник на холодну воду. Підведено газ. Є вентиляційний канал (витяжка), а також отвір у стіні для вихлопу з котла. Встановлені м/пластикові вікна, а також металеві вхідні двері, фасад будинку утеплений зовні, в квартирі навіть без опалення тепло взимку, це хороша економія на опаленні. Затишний прибудинковий дворик, красива сходова клітка, домофон. Дивіться фото. Продаж від власника, реальному покупцю-торг.