продам будинок

Одеська область ,  місто Одеса , вул. Кавунова
Показати на карті
285'000 USD
1172 за м2
Код: 845
К-ть кімнат: 6
Поверх: 3
Площа: 243 м2
Земельна ділянка: 4 сот
оновлено: 26 травня
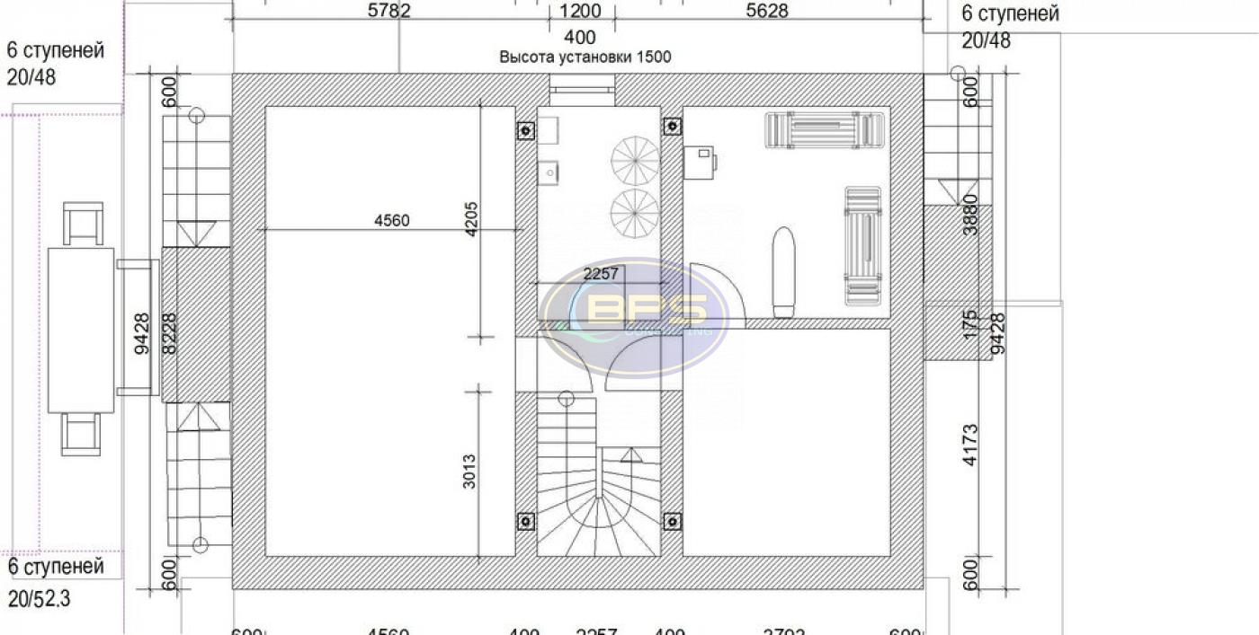
Пропонується просторий сучасний будинок, збудований з екологічного червоного керамічного блоку, з облицюванням фасадною цеглою. Характеристики: – Загальна площа: 243 м² – Земельна ділянка: 4,39 сотки (державний акт) – 3 поверхи – 4 спальні, кабінет, вітальня, кухня – 3 санвузли окремий туалет – Спортзал, топкова, технічні приміщення – Паркомісце на 4 авто Конструктивні особливості: – Монолітний фундамент – Цокольний поверх: захищений, товщина стін — 60 см, перекриття — 50 см армованого бетону – Перекриття: монолітна плита 240 мм – Фасадні стіни — 640 мм (520 мм ефективний блок СБК 120 мм облицювальна цегла) – Внутрішні перегородки — керамічна цегла – Вікна REHAU GENEO: профіль 86 мм, склопакет 42 мм – Дах: вальмова конструкція, покрита керамічною черепицею Планування: Цокольний поверх: спортзал, топкова, постірочна, комора, генераторна 1-й поверх: гардероб, санвузол, кабінет, вітальня, кухня, гостьова спальня 2-й поверх: майстер-спальня з гардеробом і санвузлом, дві дитячі кімнати, окремий туалет і ванна Комунікації: – Електрика: 27 кВт – Централізовані водопостачання та каналізація – Газ – Будинок готовий до внутрішніх робіт і оздоблення Тиха вулиця без автомобільного трафіку. У пішій доступності — дитячі садки, школи, спортивні клуби, SPA-центри, пляж. Ідеальне рішення для комфортного життя в місті. Телефонуйте для отримання додаткової інформації та організації перегляду.