продам нежитлова нерухомість

Одеська область ,  місто Одеса , вул. Успенська
Показати на карті
290'000 USD
1479 за м2
Код: 380
Тип нерухомості: інше
оновлено: 19 лютого
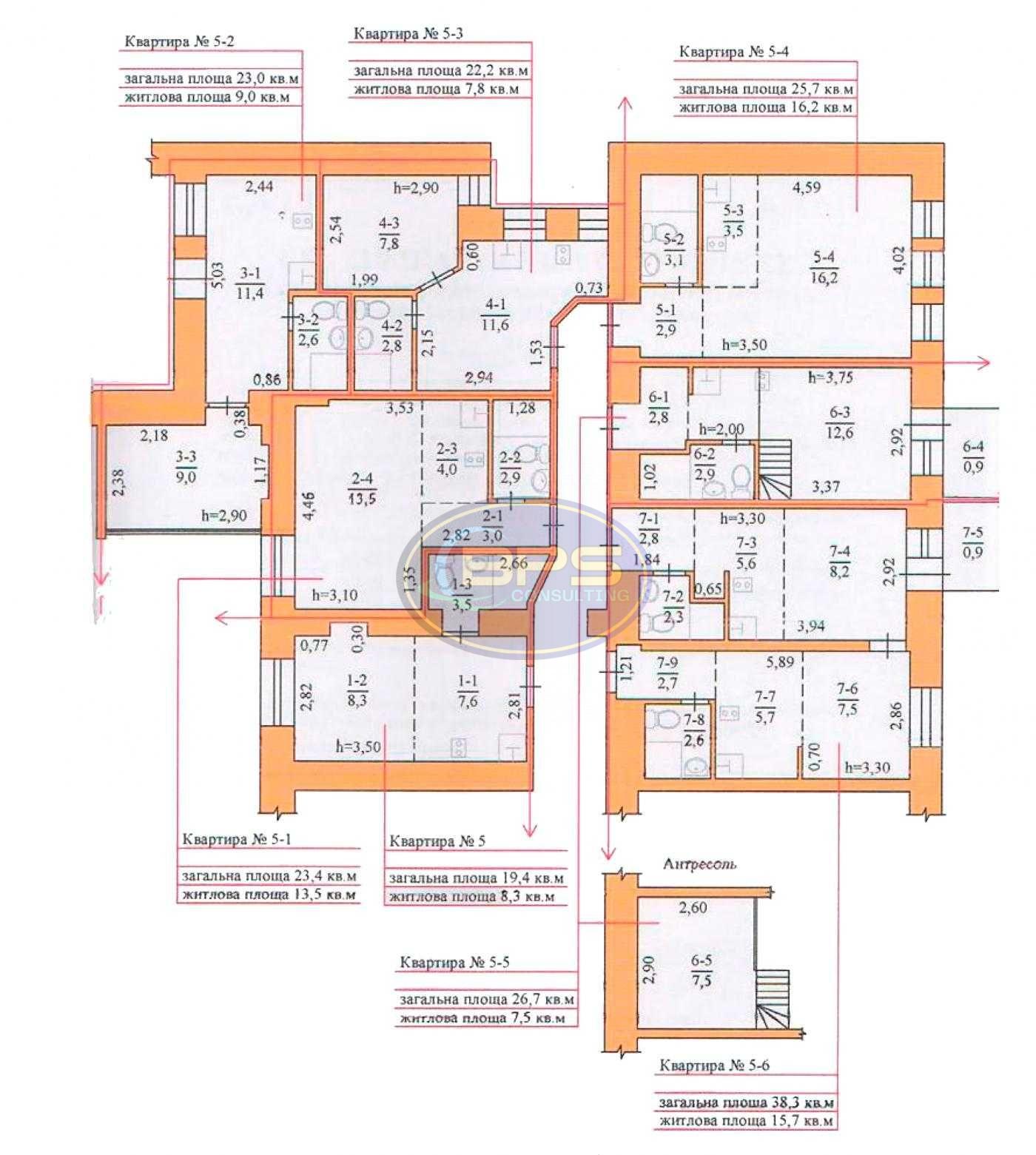
Ціле крило у пам'ятці архітектури по вулиці Успенській (Прибутковий дім Булгакова). Простір розплановано на 6 невеликих смартквартир, та 2 1-кімнатні, що продаються як один лот під орендний бізнес. Розташовані на 3 поверсі з 3 житлових. Над ними є ше горище, до якого є доступ та де розміщується запасний бак з водою та насосом для забезпечення постійного напору. Кожна квартира має площу від 19 до 38 м2, свій лічильник на електроенергію та воду. Об'єднані одним великим коридором, мають висоту стелі до 3,7 м. В кожну заведено 5 кВт, мають свій санвузол. Повністю мебльовані та наповнені побутовою технікою. По документам - житловий фонд, на кожну одиницю окремі документи з правом власності та техпаспортом. Одна з квартир має окремий вхід. Можна розглядати під орендний чи довгостроковий бізнес. На цей час квартири здані в довгострокову оренду і приносять 1700$ в місяць (без подобової оренди).