продам квартира

місто Київ
9'800'000 ГРН
80327 за м2
Код: 909626928
Поверх: 3 із 18
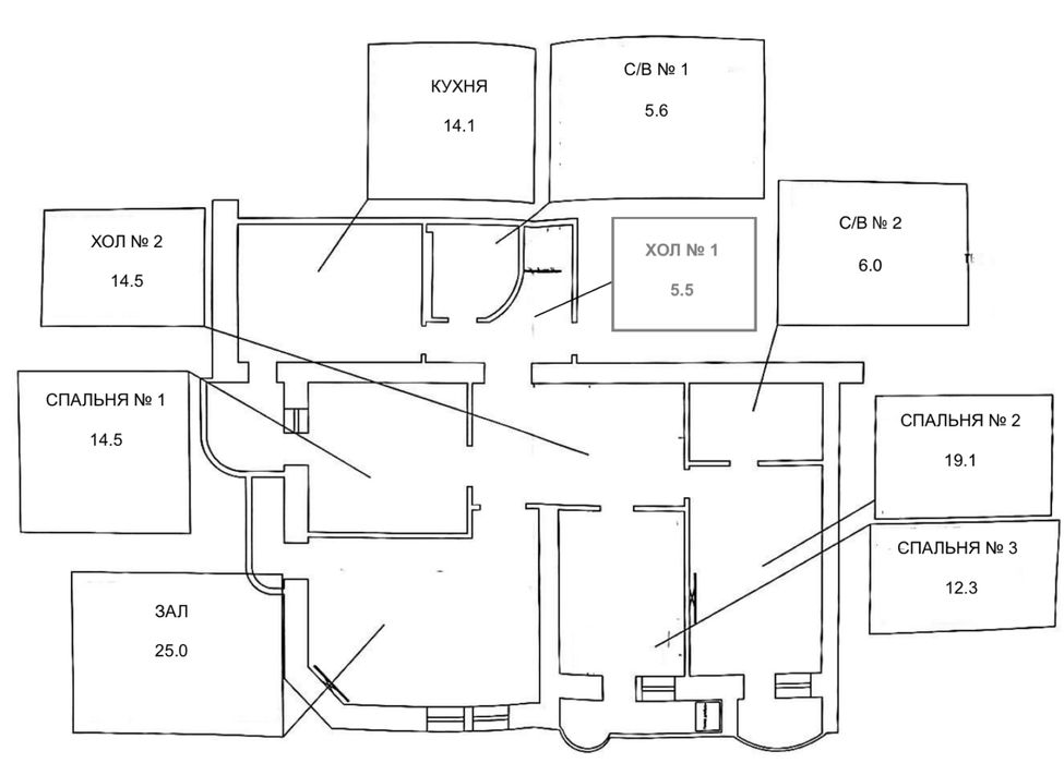
Площа: 122 м2
Кухня: 17 м2
Ванні кімнати: 3
оновлено: 17 лютого
Святошинський; Продаж 4к квартири 122 кв. м на вул. Михайла Котельникова 35; Будинок розташований у колишній санаторно-курортній зоні, в оточенні трьох паркових зон. З сучасними дитячими, спортивними, футбольними майданчиками. Пішим кроком до станції метро Святошин 5-6 хвилин, до метро Житомирська 7-8 хв. Квартира з чотирма окремими кімнатами розташована на 3-му поверху цегляного 18 поверхвому будинку. Товщина зовнішніх стін 2,5 цегли, забезпечуючи хорошу тепло- та шумоізоляцію, зберігають тепло взимку і прохолоду влітку. Висота стелі 2, 9 м. Планування 4 кімнатнатної квартири : зал 25 м. Кухня 17 м. 3 окремих спальні (19 м, 14.5 м, 12.3 м) , у кожній кімнаті балкон-лоджія (засклені), 2 окремі санвузла. На підлозі натуральна паркет, в холле та кухни плитка, двері з натурального дерева Кондиціонери з функцією обігріву у кожній кімнаті. Квартира обладнана сигналізацією, приєднаною до пульта поліції охорони (знаходиться за півтора кілометри). У будинку три ліфти. Парковка для автомобілів обладнана відеокамерами. Під'їзд будинку також обладнаний відеокамерами та має консьєржа. На першому поверсі будинку продовольчий магазин із товарами першої необхідності. Також у будинку є бомбосховище Поруч одразу кілька державних дитячих садків. Три звичайні школи, гімназія східних мов, та американка школа Kyiv International School. Рік введення в експлуатацію 2003 року.