продам будинок

Одеська область Овідіопольський район,  село Лиманка (Мізікевича)
Показати на карті
87'000 USD
725 за м2
Код: 914545640
К-ть кімнат: 3
Поверх: 3
Площа: 120 м2
Земельна ділянка: 40 сот
оновлено: 13 березня
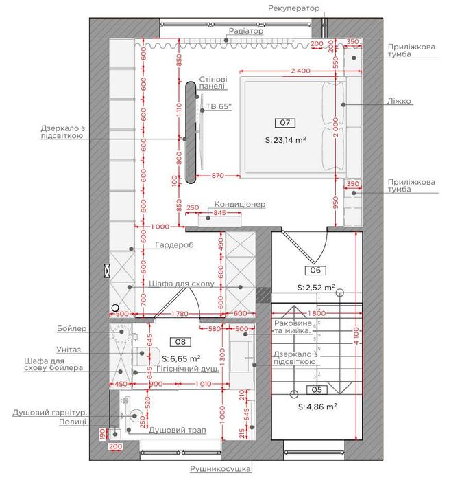
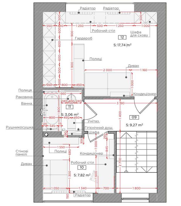
Таунхаус "Гармонія 6", Червоний Хутір, 120 м², 3 поверхи,дизайн-проект; Продаю власний таунхаус в Одесі, в приватному секторі «Червоний Хутір». 3 поверхи, 120 м², 2 паркомісця, власна барбекю-зона 20 м², висота стелі 3 м. Електрика, вода, газ, інтернет, каналізація – вже все в домі. 6 відеокамер, дзвінок та відеоглазок на вході в комплекс, доступ з телефону, автоматичні ворота на пульті або по дзвінку, парковка перед комплексом, якісний фундамент і утеплення, сучасне оздоблення фасаду та двору, тротуарна плитка у всьому комплексі, освітлення, Viber-група мешканців комплексу. Всі вулиці від комплексу асфальтовані, до маршруток 200 м, до Метро, Епіцентра, Сільпо, Таврії, АТБ і оптового ринку - 3 хвилини на машині. «Дайберг» – аквапарк, ресторан, басейн, парк, міністадіон, спортмайданчик - 1 хв., море - 10 хв. Поруч: НП, садочки, школи та інше. Повний дизайн проект від відомого агенства на 107 сторінок – візуалізація і детальні плани і схеми повністю всіх робіт, з артикулами всього навіть фурнітури + кошторис по абсолютно всім елементам. Ви будете знати скільки потрібно фарби, вінілу, плитки, кабелю, розеток та іншого. Проект робили для себе. Пишіть, телефонуйте, всю інформацію надам.