продам будинок

Київська область Києво-Святошинський район,  cмт Гостомель
Показати на карті
155'000 USD
1280 за м2
Код: 913678958
К-ть кімнат: 3
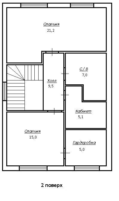
Поверх: 2
Площа: 121 м2
Земельна ділянка: 2.3 сот
оновлено: 8 лютого
Дуплекс з ремонтом! Гостомель, парк "Щасливий"! Газове опалення!; Гостомель, вул. Патріотів (поруч з парком Щасливий); Дуплекс двоповерховий: 121,3 м2; Ділянка: 2,3 сот; Забудова 2020 року; Гарна, затишна локація: поруч з будинком парк для прогулянок, лісова частина, супермаркети, зупинки, кафе, ресторани, навчальні заклади та інше; Зручний виїзд на Варшавську трасу в напрямку Києва! Закрита територія, заїзд через автоматичні ворота; Власна парковка на два авто; Будинок під охороною; Сучасний, авторський ремонт (власники жили меньше року, все нове)! Всі необхідні меблі та техніка (газовий котел, витяжка, газова поверхня, духова шафа, мікрохвильовка, посудомийна машина, пральна машина, три телевізори 85”, 65”, 43”, все входить у вартість! Додатково зроблена крита засклена, мебльована тераса; 1-й поверх: -передпокій; -просторий хол; -повністю обладнана кухня/столова (якісні, дорогі фасади на доводчиках Blum, вбудована техніка); -сан/вузол; -велика вітільня з якої вихід на терасу та задній двір; 2-й поверх: -хол; -дитяча спальня; -сан/вузол; -кабінет; -спальня з гардеробною кімнатою; По всьому будинку продумані місця для зручного зберігання різних речей та одягу; Опалення: газ! Тепла підлога на всьому першому поверсі та с/в другого; Електрика: день/ніч; Оформлення мінімальне! Перегляди в будь-який день!