продам будинок

Житомирська область Житомирський район,  село Станишівка
Показати на карті
102'000 USD
637 за м2
Код: 899216173
К-ть кімнат: 3
Поверх: 1
Площа: 160 м2
Земельна ділянка: 10 сот
оновлено: 26 квітня
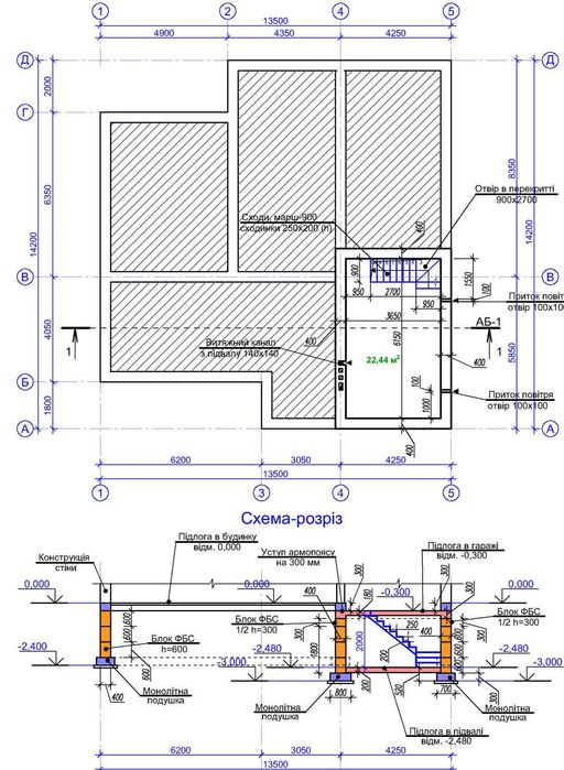
Продаж будинку в с. Станишівка. Недобудова 160 м2; Продаж будинку в с. Станишівка (р-н обласної дитячої лікарні) За Тенісні корти. Загальна площа 160 м² жила 118м², 13,5*14,5 з підвалом 23м² та гаражем( чи підсобне приміщення) 23м². Дуже гарне місце, розташування не чутно трассу. Гарні Сусіди поруч вже проживають. Земельна ділянка , правильної форми, 25*40 площею 10 сот. Будинок Будувався для себе згідно проекту та нормам, та якісними матеріалами Фундамент 2,35м. дуже міцний з ФБС плити з армованою бетонною подушкою. та міцним армопоясом. Підвал(сховище) сухие гідроізольване, перекриття підвалу монолітне 18мм-та 16 арматурой. Коробка Стіни з газобетону 400 мм. несучі пере стінки з газобетону 300 мм., армований кож 4 ряд, та залитий міцний армопояс під кришу , перекритя плитне. змонтован димхід під камін Дымоходная система Javar Universal Plus .Висота стелі 3,1 м. Є змога змінити планування так як міжкімнатні пере стінки та чорнова підлога ще не робились. Криша металочерепиця немемечина ТІССЕНКРУПП спеціальне антикорозійне цинково-магнієве (ZM) покриття, Супердиффузионная мембрана Евробарьер Q160.Е багато місця можна облаштувати кімнату Комунікації: електрика 380, 3 фази, 16 кВ ,Газ поруч по вулиці. асфальтований під'їзд. Продаж від Власника .Можливий обмін на 2-3 х кімнатну квартиру. Торг