продам квартира
| Код: |
860795397
|
| Поверх: |
21 із 26
|
| Площа: |
61.9 м2
|
| Кухня: |
12.87 м2
|
| Ванні кімнати: |
3
|
| оновлено: |
3 лютого
|
Дніпровський; Продаю 2-кімнатну квартиру (Київ, новобудова, переуступка); Продається 2-кімнатна квартира 61,9m², 21 поверх, у новобудові по вулиці Володимира Сосюри 6 (Київ, Дніпровський район). Продаж від власника.
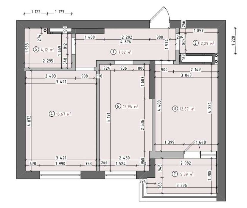
Експлікація приміщень:
1. Перепокій 7,62 м.кв.
2. Санвузол 2,29 м.кв.
3. Кухня + вітальня 12,87 м.кв.
4. Спальня 1 16,67 м.кв.
5. Душова кімната 4,12 м.кв.
6. Спальня 2 12,94 м.кв.
7. Балкон 5,39 м.кв.
Загальна площа: 61,90 м.кв.
Особливості:
- будівництво з червоної цегли — додаткова звуко- та теплоізоляція.
- в кожній квартирі регулятор тепла — це дозволить економити на рахунках та виставляти в кожній кімнаті комфортну для вас температуру.
- безперебійну подачу тепла та гарячої води забезпечує власна газова котельня.
Біля будинку зручна транспортна розв'язка — всього декілька хвилин до зупинки громадського транспорту. В районі новобудови кілька офісних та бізнес-центрів. За 10 хвилин від комплексу «Дніпровська Мрія» розташований «Арт-завод Платформа», де часто відбуваються фестивалі їжі, освітні заходи, виставки, воркшопи та багато іншого.
20 хвилин пішки до торгового центру «Проспект», в якому працює більше 100 магазинів, продуктовий гіпермаркет «Ашан», кафе та ресторани, кінотеатр «Мультиплекс». Купити продукти поблизу можна в супермаркетах «АТБ», «Велика Кишеня», «Сільпо» та Novus. Поруч працюють декілька кафе, ресторани та «Макдональдс».
У пішому доступі приватний дитячий садок «Заріна», дитячий сад №296 «Віночок» та дитячий сад №554. Діти швидко ростуть, тому поруч повинні бути школи — 15 хвилин пішки до школи №42, 16 хвилин до школи №66 та №129, а за 5 хвилин на авто можна доїхати до школи №31, №146 та гімназії №167.
Сходити на тренування недалеко від будинку можна буде у спортивний зал Sportland, фітнес-клуб Sport Life та фітнес-клуб Grand Sport. Для тих, хто займається плаванням або давно хоче почати, 5 хвилин до критого плавального басейну у палаці підводного спорту, де проходять тренування з аквааеробіки та заняття з дайвінгу.