продам квартира
| Код: |
911821763
|
| Поверх: |
2 із 8
|
| Площа: |
25 м2
|
| Кухня: |
8 м2
|
| Ванні кімнати: |
2
|
| оновлено: |
1 лютого
|
Шевченківський; Власник! вул. Лук’янівська, 22, ЖК "Smart Concept"; Власник! Продаж смарт-квартири з ремонтом . Комісійні Рієлторам НЕ оплачую, про актуальність НЕ перепитувати, доки бачите оголошення - вона Є! писати ТІЛЬКИ коли є клієнт
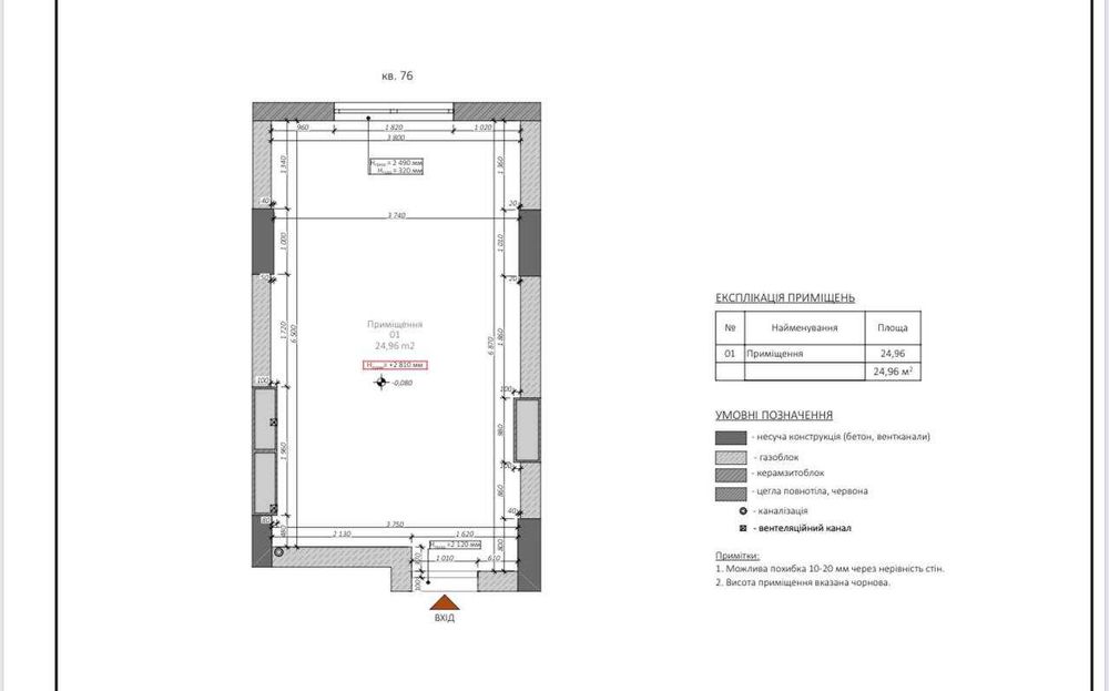
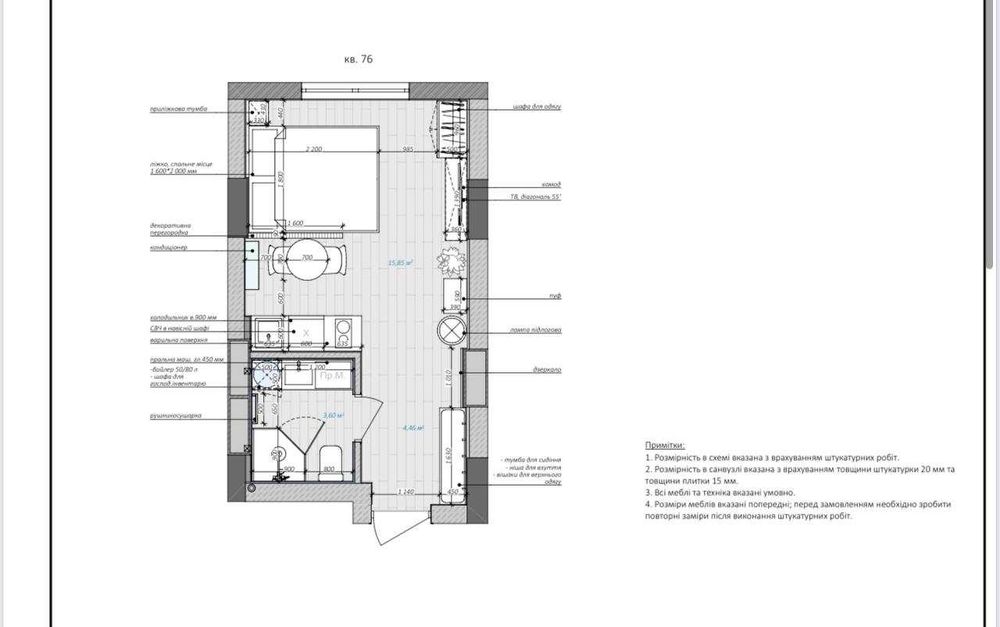
Продається однокімнатна смарт-квартира у Шевченківському районі м. Києва за адресою вул. Лук’янівська, 22, ЖК S"mart Concept."
Квартира розташована на 2 поверсі, площа 24, 96 що робить її ідеальним варіантом .
сучасний житловий комплекс Smart Concept
вигідне розташування у центральному районі
перший поверх — зручно для бізнесу
продаж по переуступці
зручний перегляд у будь-який час за домовленістю
Пишіть домовимось про перегляд у зручний для вас час! Вигідно під бізнес, вартість здачі в оренду 500 Дол..США . Вартість 77000 дол.