продам будинок
Запорізька область , місто Запоріжжя
| Код: |
902533727
|
| К-ть кімнат: |
2
|
| Поверх: |
1
|
| Площа: |
83.8 м2
|
| Земельна ділянка: |
5 сот
|
| оновлено: |
17 березня
|
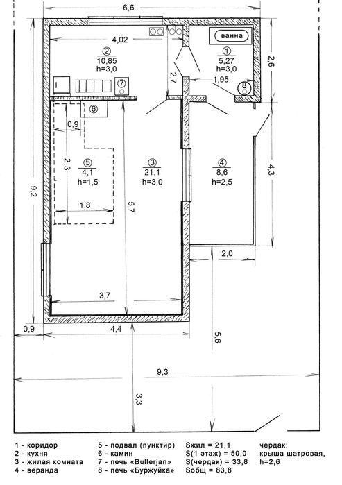
Шевченківський; Цена снижена. Продам капитальный каменный дом; Капитальный каменный дом в дачном кооперативе Пингвин, в Шевченковском районе по ул. Базовая (в черте города, от остановки Магистральная - 15 мин. пешком; ул. Кузнецова – через дорогу). Шлакоблок / кирпич, высокие потолки - 3м. Общая S - 83,8м2. Первый этаж - 50м2, кухня - 10,85м2, жилая комната - 21,1м2, чердак - 33,8м2. Крыша шатровая, высота 2,8м. Постоянно питьевая вода, свет. Отопление - буржуйка в коридоре, печь «Булерьян» в кухне, камин в комнате. В коридоре установлена ванна (со стоком). Можно установить бойлер и принимать ванну круглый год. Подвал с вентиляцией, бетонирован (стены, пол, потолок).
Участок пять соток. В саду вишни, слива, груша, яблоня, виноград, орех. Въезд для машины. Есть хоз. постройки. Бассейн (была скважина – замулилась, при желании её можно восстановить).
Дом использовался как жилье, четыре года стоит пустой. В доме необходимая мебель, холодильник, телевизор, двд, газ. плита, газ. баллоны, садовый инвентарь и т.д. - входят в стоимость.
На территории кооператива более 20 домов используются круглогодично как жильё, за счет переселенцев их количество растет. Украинское законодательство позволяет переводить такие дома в жилой фонд с последующей городской пропиской.
По всем вопросам пишите на электронную почту или звоните. Больше фото и видео по Вашей заявке перешлю на вайбер или почту.