продам будинок
Київська область Києво-Святошинський район, село Святопетрівське (Петрівське)
Показати на карті
| Код: |
910777703
|
| К-ть кімнат: |
4
|
| Поверх: |
2
|
| Площа: |
120 м2
|
| Земельна ділянка: |
6 сот
|
| оновлено: |
27 січня
|
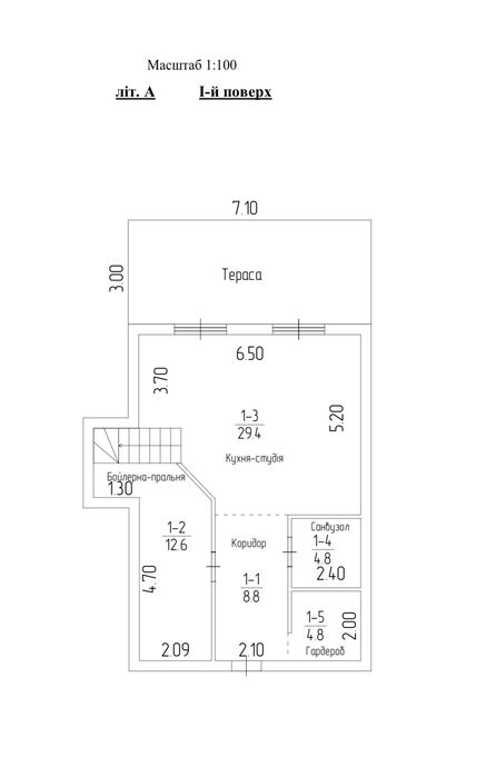
Продам Дом 120м2 участок 6соток; Продам двухэтажный дом 120м2, участок 6 соток. Есть возможность рассрочки. Дом на этапе строительства, в феврале можно заходить на ремонт.
1й этаж большая кухня студия 35м2, гардеробная, прачечная, санузел. При необходимости можно сделать ещё одну комнату.
2й этаж спальня с гардеробной 24м2, две детские комнаты по 12м2, ванная комната.
Заведено 17квт света. Счётчик день-ночь.
Дом построен из качественных материалов. Рядом магазины, ТРЦ.
Новый район без старых построек.