продам квартира
| Код: |
907439729
|
| Поверх: |
9 із 10
|
| Площа: |
81 м2
|
| Кухня: |
15.2 м2
|
| Ванні кімнати: |
3
|
| оновлено: |
18:08
|
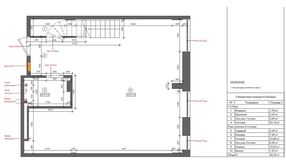
Дніпровський; Від власника!! Дворівнева 81/96 м² у Comfort Town. Готова під ремонт.; Продам дворівневу квартиру 81 м² (фактично 96 м²) у ЖК Comfort Town, 9/10 поверх, за адресою вул. Регенераторна 4 корпус 16.
Будинок 2015 року. Квартира після будівельників, але вже виконано частину важливих робіт:
• залиті бетонні сходи
• зроблено «друге світло» (планувались два кабінети)
• часткове перепланування за дизайн-проєктом
• частково поштукатурені стіни
• проведена електрика під дизайн-проєкт.
В подарунок:
• схема розміщення вікон на покрівлі
• дизайн-проєкт
Планування:
Перший рівень — велика відкрита зона (кухня + вітальня), гостьовий санвузол та гардеробна.
Другий рівень — дві окремі кімнати (10 та 11 м²), санвузол 6 м² + гардероб.
Вікна на південь — квартира світла, тепла.
Головна перевага: по документах 81 м², а фактично ~96 м²!
Комфортний, затишний ЖК з охороною, закритою територією та розвиненою інфраструктурою.
Телефонуйте — квартира з великим потенціалом!
Вартість 120 000$