продам квартира
Харківська область , місто Харків
| Код: |
845165933
|
| Поверх: |
12 із 17
|
| Площа: |
150 м2
|
| Кухня: |
15 м2
|
| Ванні кімнати: |
3
|
| оновлено: |
27 квітня
|
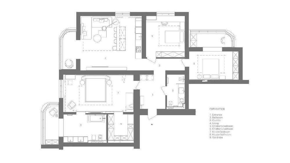
Київський; Продам 4-х кімнатну простору, облаштовану квартиру; Продам 4-х кімнатну квартиру на Салтівці по вул Джерельна 11 А
Загальна площа 150 кв м
ТРИ спальні кімнати
ДВА санвузли
Дизайн ремонту, та його якість відображені на фото.
Всі меблі та техника входять у вартість .
2 телевизора, пральна машина, посудомиєчна машина, вмонтований холодильник, вминтована морозильна камера , 4 кондиционери.
Тепла підлога у прихожій кімнаті , санвузлах та робочої зони кухні.
Всі будівельні матеріали а також матеріали з яких були замовлені та виготовлені мебля - дуже високої якості відомих виробників.
Будинок зданий у 2018 р.
У вартість входить кладова кімната расташована на поверху, яка має окремий вхід.
Також у вартість входить гараж на одну автівку, який знаходиться у ГК "Дружба" по вул Бучми.
Гараж по довжені - 6 м, по ширині -2,90 м. по висоті - 2,60 м. Встановлені автоматичні ворота, (ролет), Висота воріт 2,10 м ширина 2,40 м.
Заведено єлектропостачання, є погреб.