продам будинок
Львівська область , місто Львів
| Код: |
909050284
|
| К-ть кімнат: |
4
|
| Поверх: |
3
|
| Площа: |
210 м2
|
| Земельна ділянка: |
2.5 сот
|
| оновлено: |
6 січня
|
Сихівський; продаж таунхаусу (котеджу) по вул Рудакі від забудовника; Продаж котеджів від забудовника на етапі котловану
Старт будівництва -1 квартал 2026року
Здача - 2 квартал 2027 року
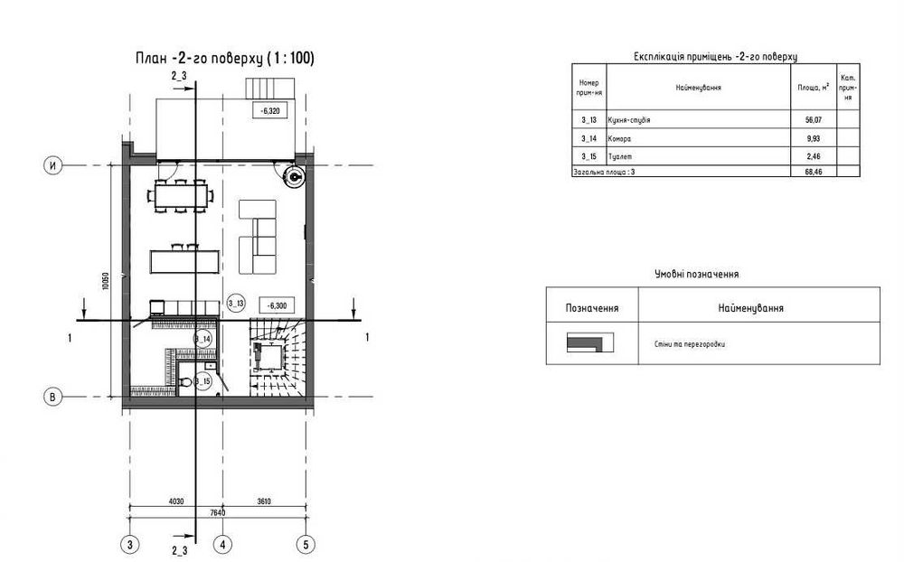
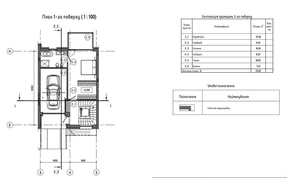
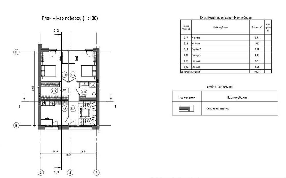
Планування, за потреби, можна змінювати до старту будівництва в межах зовнішніх стін одного котеджу
Котеджі знаходяться на похилій ділянці , через це заїзд відбувається на 3 поверх, і потім вже йдуть два поверхи вних + вихід на дах
Ліфт встановлюється за додаткову оплату, одразу з виїздом на експлуатований дах
Вартість до початку будівництва - 211м2 х 1600$ = 337600$
Вартість після початку будівництва 211м2 = 1700$ = 358700$
Можливе розтермінування платежів
Всього буде 4 котеджі, в наявності 2 котеджі, 2 вже продані
У вартість входить будинок з штукатуреними стінами, всіма підключеними комункаціями (світло, газ, вода) та власним септиком, фасад вкритий баранником та ландшафт згідно проекту, вулиця постелена бруківкою , вуличне освітлення
З котеджів вигляд на винниківський ліс
Котеджі на горбочку , тому відкриваються чудові панорами
Ділянка 2,5 сот
Інформація для маклерів: ви можете пропонувати своїм клієнтам без проблем, але я нікому нічого не скидаю, фото без лого олх є за посиланням нижче. Прохання не телефонувати мені без причини, бо з такими маклерами в нас співпраця не складеться. Телефонуйте(а краще пишіть на тг) тільки, коли маєте клієнта для показу.
На початку допишіть букву "h"
ttps://drive.google.com/drive/folders/1KCoMv0QIF85tsg3u7y_OOnAOUPXeAOJq?usp=sharing