продам будинок

Дніпропетровська область ,  місто Дніпро (Дніпропетровськ)
Показати на карті
25'000 USD
510 за м2
Код: 754224714
К-ть кімнат: 2
Поверх: 1
Площа: 49 м2
Земельна ділянка: 3 сот
оновлено: 18 грудня
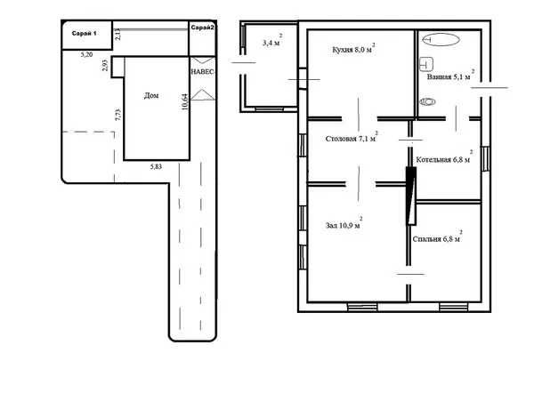
Амур-Нижньодніпровський ; Продам СВОЙ дом Клинчик р-н АТБ не риелтор; Продам свой дом 49м.кв. ж\м"Клинчик" без ремонта (требует вложений) после аренды сделан проф. клининг но требует косметики внутри и снаружи просьба внимательно смотреть фото - при необходимости предоставлю ещё + видео требует замены обоев, подкраска батарей (замена маевск), мелкие ремонты, покараска дома и т.п. Сараи 2шт на участке без крыши 130м. от клинчика, АТБ, Аптека и т.п. Всё на электричестве (из комунальных только Электрика) Тариф день\ночь +отопление -50% (в сезон) Насосная станция, холодильник, стир маш, водонагреватель, котёл 5Кв. - всё электро Газплита\балон, интернет (есть возможность подключить несколько провайдеров оптоволокно) Кухня проходная Котельная проходная Столовая проходная Зал проходной Спальня отдельно С/у Ванна туалет совместный Смотрите последнее фото - планировка Участок всего 3 сотки Развязка - маршрутки в Центр и на пл.Старомостова Место под 2 авто Всё как на фото перед просмотром ещё раз просмотрите фото. Звонить и вопросы 10:00 до 24:00 1 этаж, 4 комнаты. Кухня-8, Ванная-5,1, Столовая-7,1, Котельная-6,8, Зал-10,9, Спальня-6,8. Материал стен – двойной шлакоблок, фундамент дома – бетонные блоки. Площадь участка 3 сотки, площадь застройки 1 сотка. Высота потолков 2.6 метра, высота чердака 2.3 метра. Вид из окон во двор. Покрытие полов – дерево, (Ванна, туалет в доме(пол стяжка)) Автономное водоснабжение(насосная станция), Эл. отопительный котел, Эл. водонагреватель 80л. Окна металлопластиковые. Межкомнатные двери МДФ. Покрытие крыши – шифер. Дом построен в 1948 году. Своя канализация (яма правильная и большая не требует выкачки). У дома 1 собственник - дарственная, прописан 1 человек, кадастра есть, паспорт есть, приватизации нет. Для сделки только оценка нужна 19.000 $ Звонить и вопросы 10:00 до 24:00 или пишите сюда