продам будинок
Волинська область Луцький район, село Забороль , вул. Володимирська
Показати на карті
| Кадастровий номер: |
0
|
| К-ть кімнат: |
3
|
| Площа: |
118 м2
|
| Житлова площа: |
46 м2
|
| Кухня: |
24 м2
|
| Ванні кімнати: |
1
|
| Земельна ділянка: |
7 сот
|
| оновлено: |
15 квітня
|
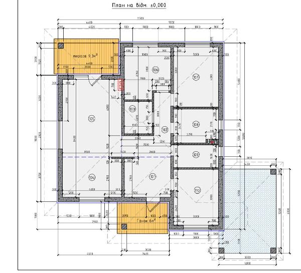
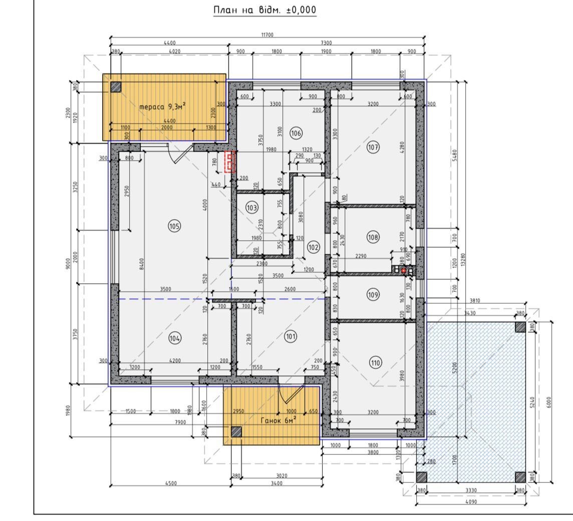
Сучасний будинок з ділянкою 7 сотих у мальовничому місці.
Площа 118 м кв
Ділянка 7 сотих
Планування :
- кухня-вітальня з панорамними вікнами та виходом на криту терасу
- 3 великі спальні
- просторий передпокій
- окрема гардеробна кімната
- санвузол
- паливна з усіма необхідними виводами ( газовий котел, електричний котел та бойлер)
Комунікації:
- електрика 7 кВт
- підігрів підлоги
- можливість підключення газу ( газ по
вулиці)
- власна свердловина
- переливний септик
Переваги:
- вивід під камін
- якісні вікна фірми WDS ( 7 - ми камерний профіль, 3 скла)
- утеплення пінопласт 15 см
- крита тераса
На території:
- навіс під авто
- фундамент під паркан
Чудова локація поруч із лісом: тиша, природа та комфортне життя всього за кілька хвилин від міста.
Будинок знаходиться на етапі забудови.