продам квартира
| Код: |
902411343
|
| Поверх: |
3 із 5
|
| Площа: |
56 м2
|
| Кухня: |
8 м2
|
| Ванні кімнати: |
1
|
| оновлено: |
24 травня
|
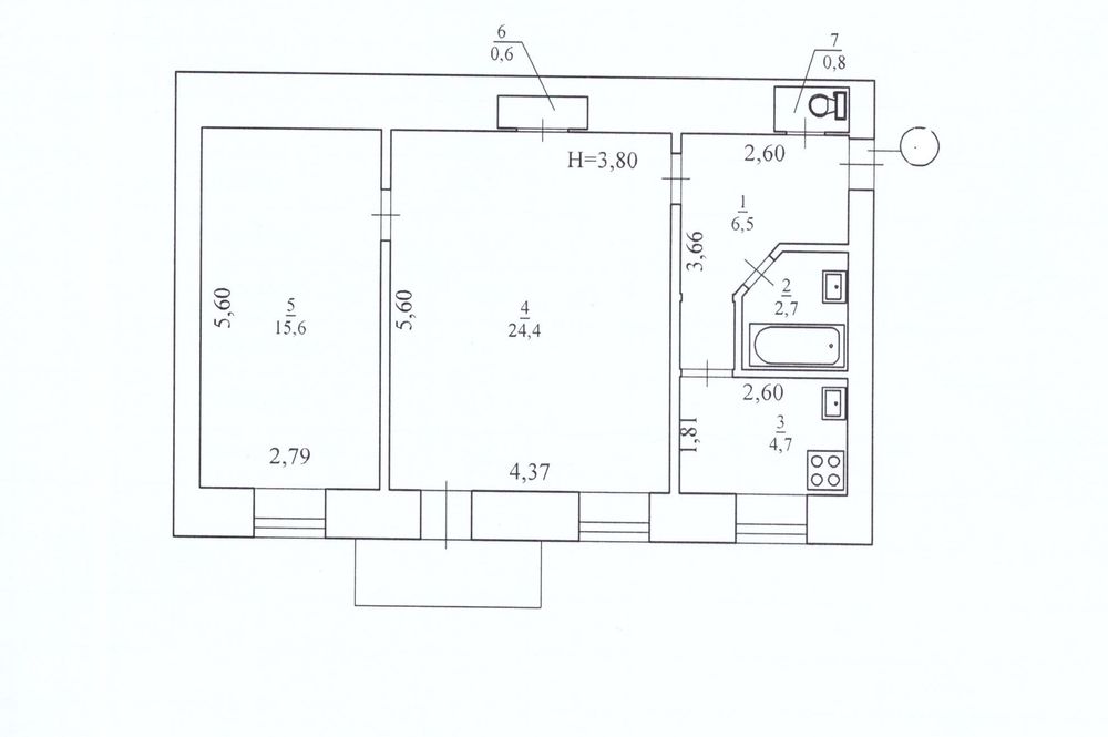
Печерський; 2к квартира на Івана Федорова 10, 56 кв.м, 3 поверх, 100800$, торг; Продається тепла двокімнатна квартира на Івана Федорова 10, центр міста, 3 поверх.
Загальна площа квартири 56 кв.м, житлова площа 40 кв.м.
Виникнення права власності у липні 2018 року (більше 3-х років), тому податки мінімальні.
Раніше в цьому приміщенні був офіс IT компанії.
Ціна за кв.м - 1800$, можливий обгрунтований торг.
Експертна оцінка з реєстру ФДМУ - 160 000$, є пропозиція зробити нижче.
Податок для покупця - 1% від експертної оцінки.
Нотаріальні витрати на оформлення угоди ділимо навпіл.
Форма розрахунку - готівка, криптовалюта (USDC, USDT). єОселя та інші варіанти не цікаві.
Підлога з третього на другий поверх складається з:
- Ковролін;
- Спінений поліетилен;
- ДСП - 18-20 мм;
- Дошка суха стругана сосна, 50мм+;
- Лаги дерев'яні перпендикулярно до вхідних дверей(3-2поверх);
- Порожнеча 250-300мм+;
- Лаги дерев'яні перпендикулярно до вхідних дверей(2-3 поверх);
- Стеля другого поверху;
Кого лякають дерев'яні перекриття, можете їх поміняти, не торкаючись сусідів.
Для ріелторів:
Представник власника, працюю з ріелторами, ексклюзивні договори не розглядаю.
Можете рекламувати на будь-яких ресурсах будь-яким чином.
Комісія - 2% (ні мені не платить власник).
Інші питання за телефоном.