продам будинок

Волинська область Луцький район,  село Струмівка
Показати на карті
65'000 USD
590 за м2
Код: 900929771
К-ть кімнат: 3
Поверх: 1
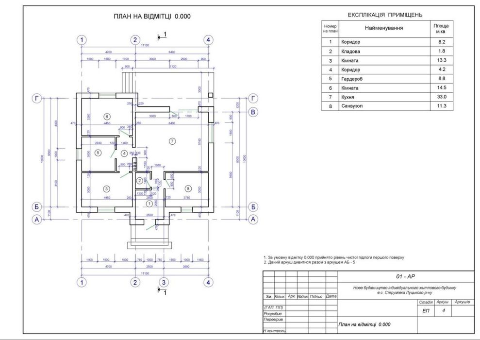
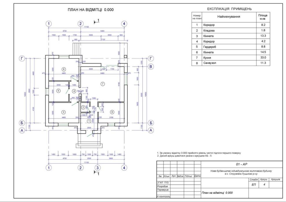
Площа: 110 м2
Земельна ділянка: 10 сот
оновлено: 23 листопада
Продається будинок у Струмівці; Продається будинок у Струмівці • Площа будинку: 110 м² • Ділянка: 10 соток • Зручне розташування: швидкий доїзд до Луцька, від обʼїзної дороги 200 м, поряд нові будинки, хороші сусіди. Будинок зведений із якісної цегли, накритий словацькою металочерепицю. Є всі необхідні комунікації: • септик • свердловина з водою • електрика 10кВт (обленерго) із можливістю добрати більше. Тариф день/ніч Додаткові переваги: • простора тераса для відпочинку • навіс для авто • правильне планування, встановлені вікна • сучасний проєкт (будинок на стадії будівництва – можливість завершити під свій смак) 10 соток землі – місця вистачить і для саду, і для зони відпочинку. Вигідна пропозиція для тих, хто шукає будинок поруч з містом, але з тишею та комфортом власного двору. Дзвоніть вже сьогодні – домовимось про перегляд!