продам квартира
Львівська область , місто Львів
| Код: |
903564317
|
| Поверх: |
10 із 10
|
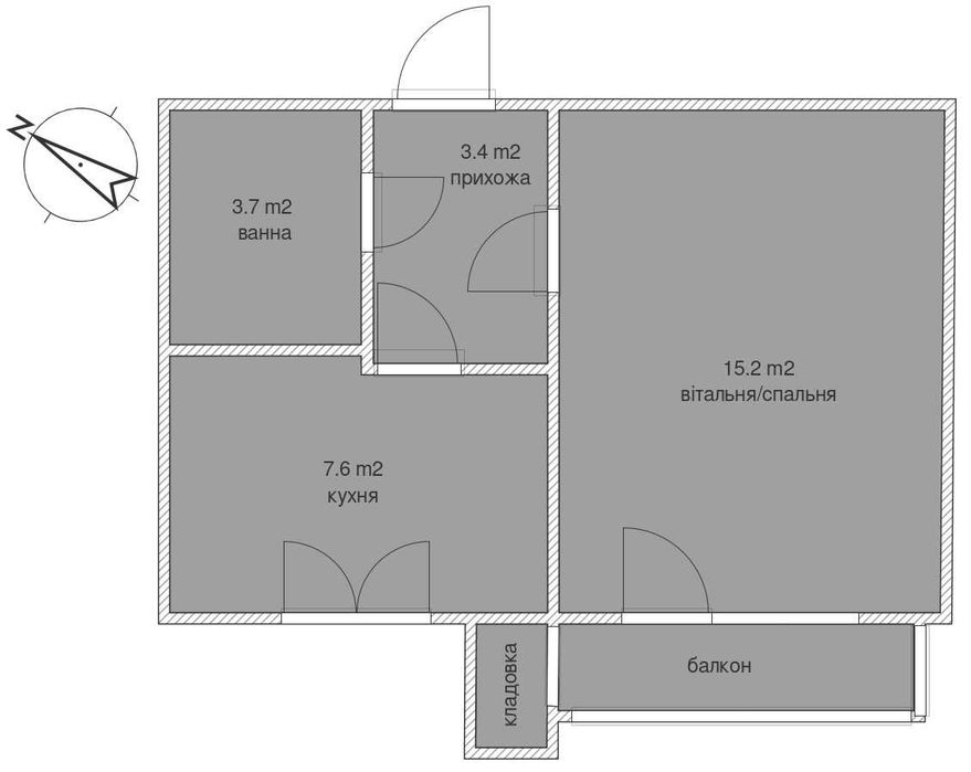
| Площа: |
30 м2
|
| Кухня: |
7.6 м2
|
| оновлено: |
14 грудня
|
Залізничний; Продається 1кім. квартира у м. Львів. вул. Виговського/Шекспір. 30кв.м; Продається 1-кімнатна квартира площею 30кв.м.
Квартира знаходиться в районі вул. Виговського/Шекспіру в м.Львів.
Планування на фото.
Квартира мебльована, все що на плануванні присутнє. Готова до проживання/здачі.
Ліфт присутній і робочий.
Опалення централізоване.
Гаряча вода централізована + є бойлер на випадок гідравлічних випробувань.
Є газ.
Вікна виходять в тихий двір. Південно-західна сторона.
Є засклений балкон з кладовкою.
Дах не тече.
Є кондиціонер на випадок жари.
Будинок цегляний збудований в 90-х.
Продаж від власника, без комісій.
Пишіть в приватні повідомлення або у тeлeграм mykola_bm, щоб домовитися про огляд чи задати всі можливі питання.
Можу відписувати із затримкою через зайнятість.