продам будинок

Київська область Вишгородський район,  село Козаровичі
Показати на карті
4'800'000 ГРН
30000 за м2
Код: 906664083
К-ть кімнат: 6
Поверх: 2
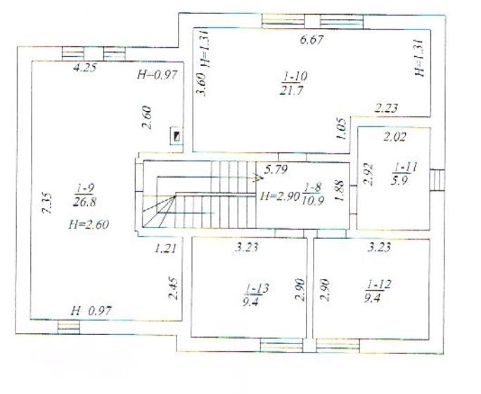
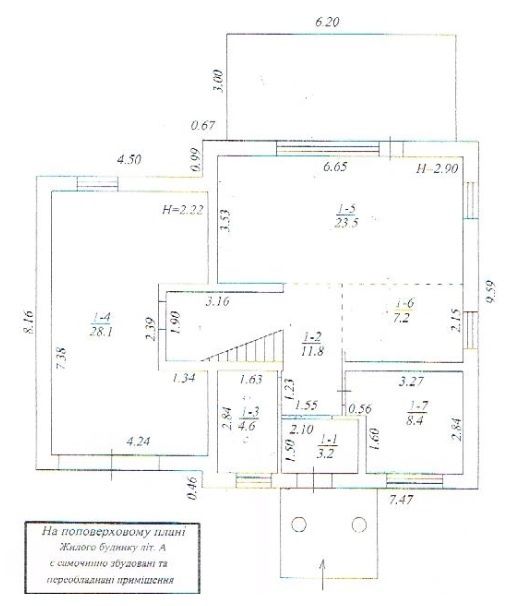
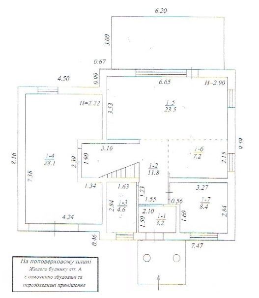
Площа: 160 м2
Земельна ділянка: 20 сот
оновлено: 14 грудня
Продаю будинок в с. Козаровичі; Будинок у Вишгородському р-ні, с. Козаровичі, 33 км від Києва. Цегляний будинок (газоблок 40см), утеплений (мін вата 10см), перекриття з/бетонні. Висота стелі 2.7м. Загальна площа - 160 кв.м.: Перший поверх: Зал+кухня 42м2, 1 спальня 9м2, Майстерня/котельня/літня кухня 28м2, сан вузол + душова 5м2. Другий поверх мансардний: дитяча кімната 27м, спальня 22м, дві гостьові спальні по 9м2, сан вузол + душова 6м2 Просторий, добротний будинок, мебльований, вся побутова техніка (вбудована електро плита, електрична духова шафа, мікрохвильова піч, посудомийка, 2 пральні машинки (на першому і другому поверсі), холодильник, камін, плоский телевізор 50 дюймів, інтернет на оптиці, відеоспостереження, охоронна система AJAX Systems. Комунікації: свердловина, електрика 5квт, опалення електричний котел (водяна тепла підлога перший поверх, радіатори другий поверх). Земельна ділянка 20 соток (40х50м). Газон 8 соток з автоматичним поливом, плодовий сад. На території є зона барбекю, теплиця 24м2, дровнік, літній душ, пергола. Територія огорожена забором. Грунтова дорога до будинку від траси Демидів-Димер 200м. На будинок є відповідні документи (свідоцтво на право власності і технічний паспорт)