продам будинок

Івано-Франківська область Тисменицький район,  село Крихівці
Показати на карті
130'000 USD
812 за м2
Код: 906348541
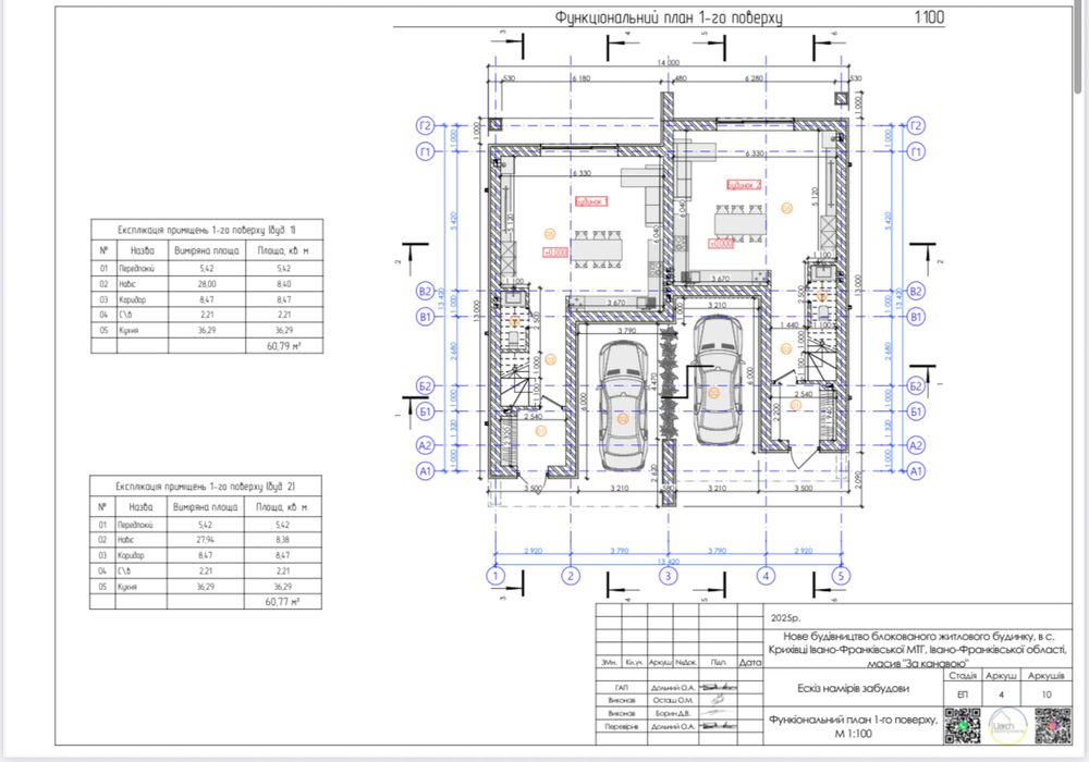
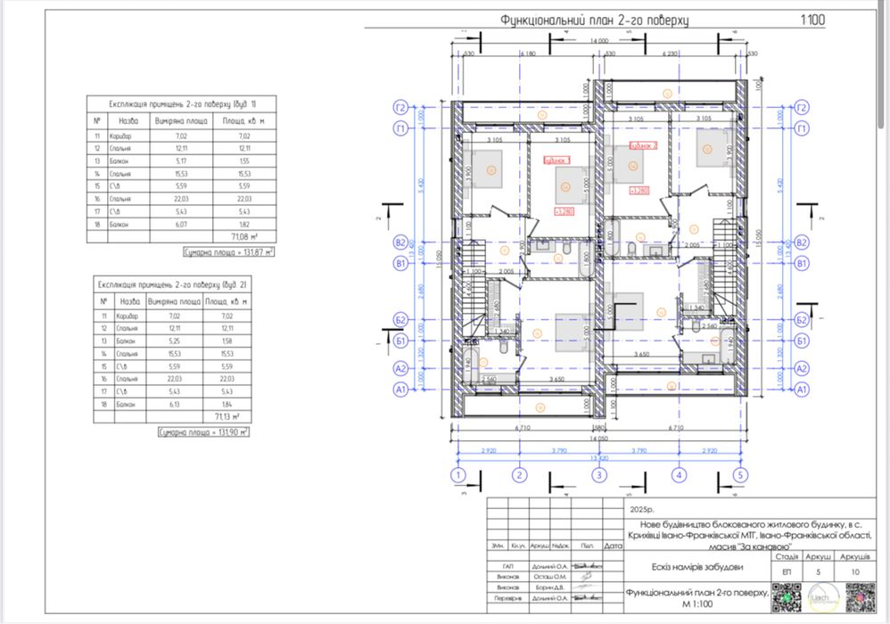
К-ть кімнат: 3
Поверх: 2
Площа: 160 м2
Земельна ділянка: 3.9 сот
оновлено: 15 листопада
Продаж сучасного дуплекса 160м2; Переваги: - відмінна якість будівництва; - зручне правильне планування; - простора земельна ділянка; - закритий передній двір. Наповнення Будинку : 1)Стіни та перестінки з цегли 1,5(Коломийська) ; 2) піщано вапняна штукатурка (машинна ) ; 3)утеплення пінопластом 12см /35 плотність ( декоративна плитка та дошка фасадна ); 4)Перший поверх перекриття плити 5)Другий поверх перекриття плити(утепленні пінопластом(екструдований пінопласт 12) ,стяжка, ПВХ мембрама -ДАХ ) 6)Бетонні сходи на 2-й поверх ; 7) Вікна , балконні двері wds S700; 8) Вхідні броньовані двері ; 9)Паркани високі Ранчо навколо всієї ділянки / декоративні блоки перед будинком 10)Ворота /фіртка 12) світло 10клв / 3 фазовий лічильник / оптоволокно / інтернет Діскавері 13) Міські комунікації : Вода , Каналізація ,Газ (лічильники) 14) Бруківка як по проекту /облаштування тераси 14)Перила на балкон - скло . 15)Ландшафтний дизайн. ЗДАЧА 2 квартал 2026року. Можливе розтермінування!