продам квартира

Львівська область Кам'янка-Бузький район,  село Ременів
Показати на карті
41'000 USD
816 за м2
Код: 906117053
Поверх: 4 із 4
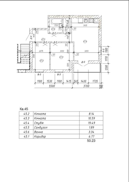
Площа: 50.23 м2
Кухня: 19.49 м2
оновлено: 12 листопада
Продаж 2 кімнатної квартири Ременів; Продається 2-х кімнатна квартира в новобудові, 50 кв.м із мансардою 30 кв.м. Продаж від власника. Будинок знаходиться за адресою вул.Куземського, 25. Квартира розташована на 4-му поверсі. Загальна житлова площа - 50,23 кв.м. У всіх приміщеннях виконано чорнову стяжку на стінах. Встановлено якісний склопакет у кімнатах і кухні. Заведено комунікації - світло, вода. Як бонус - мансардний поверх(30 кв.м), який можна використати для технічного призначення, як горище, бібліотека, тощо. Таким чином площа збільшується до понад 80 кв.м. Поряд знаходиться розвинена інфраструктура - супермаркет, магазини, кафе, ресторани, школа, зупинка громадського транспорту. 15 хв автомобілем до Галицького перехрестя. Можна приступати до ремонтних робіт вже з грудня-січня. Ціна 41000$. Можливий обгрунтований торг із реальним покупцем.