продам будинок

Київська область Києво-Святошинський район,  село Гореничі
Показати на карті
128'000 USD
882 за м2
Код: 902497973
Кадастровий номер: 3222482001:01:007:0796
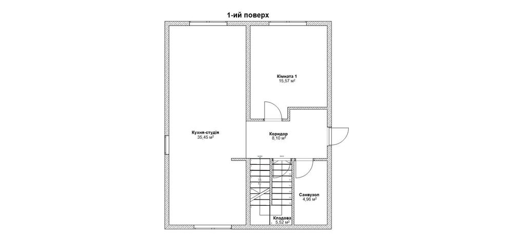
К-ть кімнат: 4
Поверх: 2
Площа: 145 м2
Земельна ділянка: 5.6 сот
оновлено: 18 листопада
Продаю Будинок 145 кв.м.; В продажі є 2-а двох поверхових будинки по 150кв.м. кожен. Розташовані на окремій земельній ділянці - відповідно до цільового призначення - розміром 5.6 сотки - с.Гореничі. Септик 6 кб.м., Електрика 20кВт та свердловина 40м. На ділянках розташовані дерева - сосни, берізки та дубки. Тихе та спокіне місце, гарний асфальтований виїзд поруч, не має транзитних доріг. 16 км до метро Житомирська, 1 км до зупинки - Петрушки, 2 км до АТБ/Сільпо, 500м до місцевого магазину. Школа та садочки 1.5 км. Додано: Встановлено вікна та двері - утеплено відкоси. При будівництві врахуємо ваші побажання, планування + є можливість добудови укриття(найбличже укриття від будинку 100м). Є можливість здачі будинку як під ремонт так і з ремонтом , фасадом та забором. Запрошую до перегляду!!! Деталі при зустрічі. Є також більші ділянки під забудову.