продам квартира

Дніпропетровська область ,  місто Кривий Ріг
Показати на карті
29'000 USD
426 за м2
Код: 904321003
Поверх: 4 із 4
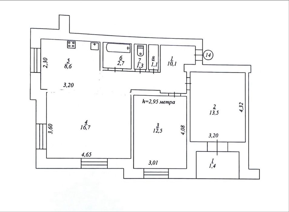
Площа: 68 м2
Кухня: 8.6 м2
оновлено: 16 грудня
Центрально-Міський; Продається 3х кімнатна квартира в серці міста, біля пр. Поштовий; Простора 3-кімнатна квартира сталінської епохи в самому серці Кривого Рогу Якщо ви мрієте про житло з характером і душею — ця квартира саме для вас! Розташування: Центрально-Міський район — один із найкомфортніших і найпрестижніших у Кривому Розі. У пішій доступності: проспект Поштовий, парк Героїв, театри, кав’ярні, школи та магазини. Зручна транспортна розв’язка, все поруч. Будинок: Класична сталінка — цегляний дім із товстими стінами, високими стелями (3 м) і справжньою архітектурною елегантністю. Чистий під’їзд, доглянутий двір із зеленню та місцями для відпочинку. Квартира: • 3 окремі кімнати + простора кухня разом з гостинною • Загальна площа — 68м² • Високі стелі, великі світлі вікна • Натуральний дубова підлога • Балкон із видом на затишну вулицю • Окремий санвузол • Збережено автентичні деталі інтер’єру • Тепла, тиха та дуже атмосферна Ідеально підходить для комфортного проживання або для тих, хто шукає житло з історією в центрі Кривого Рогу. Телефонуйте — домовимося про перегляд у зручний час!