продам квартира
Дніпропетровська область Дніпровський район, смт Слобожанське (Ювілейне)
Показати на карті
| Код: |
905449306
|
| Поверх: |
10 із 10
|
| Площа: |
67.1 м2
|
| Кухня: |
19.59 м2
|
| оновлено: |
26 грудня
|
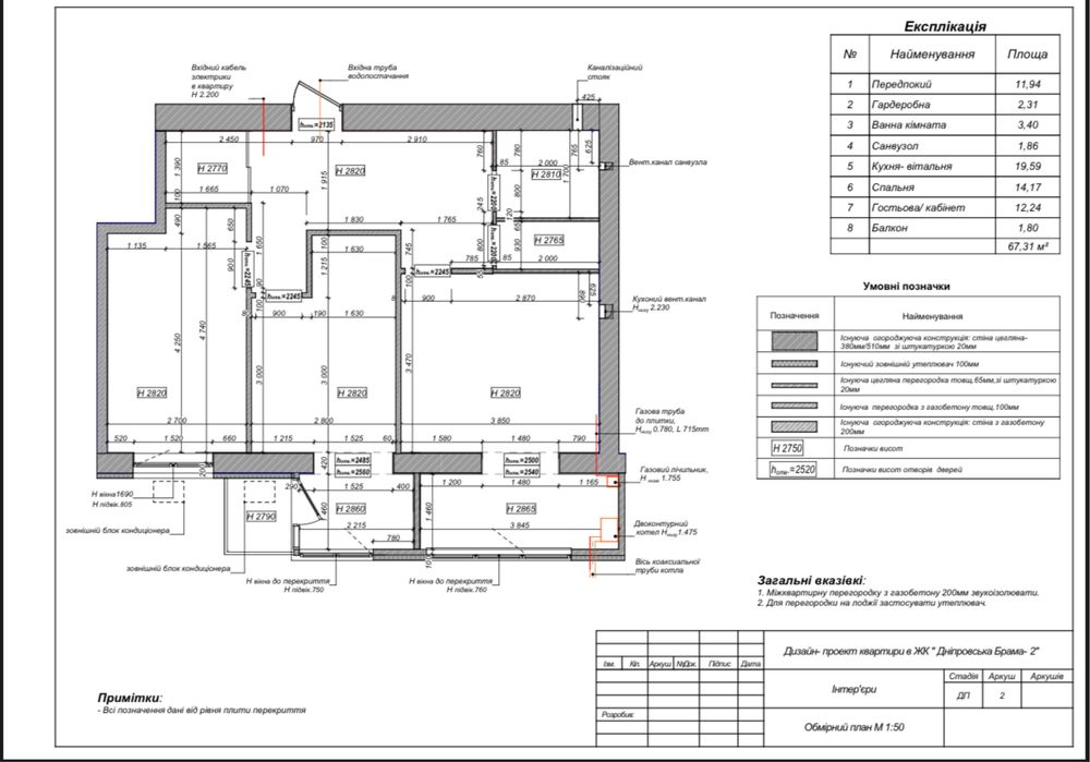
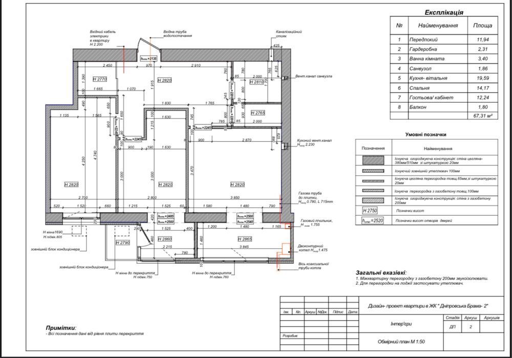
Продам квартиру з дизайн проектом у ЖК «Дніпровська брама 2»; Продається простора 3-кімнатна квартира (2 спальні і кухня-студія), роздільний санвузол, у сучасному житловому комплексі «Дніпровська брама 2» (Слобожанське, район із зручною інфраструктурою та гарною транспортною розв’язкою).
Квартира повністю без ремонту, проте вже виконані всі внутрішні перегородки та планування кімнат, що дозволяє зекономити час і кошти на початковому етапі робіт.
Додатково підготовлено готовий дизайн-проєкт, який можна реалізувати одразу після купівлі.
Секція 14, дом 7
Можливий торг