продам будинок

Київська область Васильківський район,  село Іванковичі
Показати на карті
91'500 USD
648 за м2
Код: 895506263
К-ть кімнат: 5
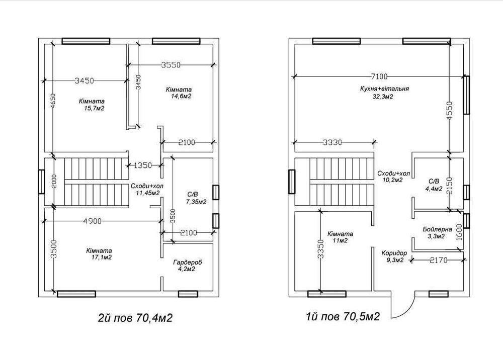
Поверх: 2
Площа: 141 м2
Земельна ділянка: 7 сот
оновлено: 3 березня
Котедж у Іванковичах – продаж без посередників!; Ваша мрія втілюється тут: Ексклюзивний котедж у Іванковичах – продаж без посередників! Шукаєте ідеальне поєднання природи та комфорту в безпосередній близькості до столиці? Цей стильний 2-поверховий котедж площею 141 м² на просторій ділянці 7 соток у мальовничому селі Іванковичі може стати вашим! Всього 13 км від Києва (до м. Теремки), і це все ваше лише за 91 500$, без комісій та зайвих витрат – прямо від власника! Будинок зведений з думкою про надійність та довговічність: міцний залізобетонний монолітний фундамент, стіни з газоблоку та якісна металочерепиця на даху забезпечують комфорт та впевненість на роки вперед. Оцініть переваги, що створюють ідеальні умови для життя: Продуманий простір: Зручне та функціональне планування будинку ідеально підходить як для сімейного життя, так і для тих, хто цінує гармонію та приватність. Усі комунікації вже є: Вам не доведеться чекати! Власна свердловина (85 м) забезпечує безперебійний доступ до чистої води, підключена електрика (24 кВт), а також встановлений автономний септик. Енергоефективність: Завдяки якісному утепленню (стіни – 150 мм пінопласт, покрівля – 200 мм мінеральної вати) ваш дім буде теплим взимку та прохолодним влітку, дозволяючи значно заощаджувати на комунальних платежах. Газ по вулиці: Є можливість підключення до газової магістралі, яка проходить поруч. Престижне сусідство: Будинок розташований у сучасному, активно забудовуваному районі серед нових котеджів, що гарантує комфортне та доброзичливе оточення. Цей котедж – ідеальний вибір для тих, хто мріє про власний куточок на природі, але прагне залишатися в кроковій доступності до всіх переваг столиці. Важливо: Будинок продається як земельна ділянка. Усі необхідні дозволи, проектна документація та акт про початок будівництва – в наявності! Не зволікайте, ваша мрія чекає! Зв'яжіться з нами, щоб отримати детальний відеоогляд та записатися на перегляд вже сьогодні!